













Wszystkie zdjęcia (13)
Szeregowy domek pod wynajem A1X2 – 70 m2
Opis produktu
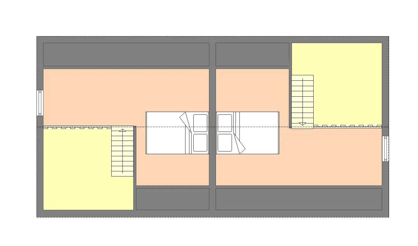
Szeregowe domki rekreacyjne pod wynajem typu A1X2 to szybki sposób na rozbudowę lub rozpoczęcie tworzenia własnego ośrodka wypoczynkowego. Dzięki dwóm osobnym wnętrzom zapewniają możliwość wynajmu dwóm grupom turystów przy zachowaniu pełnej niezależności każdej z nich. Parter każdego z wnętrz obejmuje salon, aneks kuchenny, łazienką oraz zamykaną sypialnię. Na górze natomiast rozciąga się antresola zapewniająca dodatkowa przestrzeń możliwą do zagospodarowania w charakterze sypialni. Dzięki temu w każdym z domków, w zależności od zagospodarowania wnętrza, może jednocześnie przebywać od 4 do 6 osób co daje sumaryczną liczbę nawet 12 turystów jednocześnie. Budynek w stanie surowym zamkniętym, do własnego ocieplenia ścian i dachu. W standardzie posiada ocieploną podłogę, dwuszybowe okna PCV, impregnację i malowanie elewacji oraz krycie dachu blachodachówką. Cena obejmuje także transport na terenie całej Polski oraz montaż wykwalifikowanej ekipy z ramienia producenta.
.Unikalne cechy
Bezpłatne przygotowanie fundamentu punktowego z betonowych bloczków
- Indywidualny rysunek lokalizacji podejść elektrycznych i wodnych w fundamencie oraz odpływów kanalizacyjnych
- Konstrukcja ścian zabezpieczona folią wiatroizolacyjną
- Prewencyjny system zabezpieczenia - atrapa kamery CCTV oraz tabliczka ostrzegawcza
- Indywidualny doradca techniczny przydzielony do każdego Inwestora
- Możliwość dopasowania domku do wymagań Inwestora
Cena 266 900,00 zł obejmuje
- Domek w stanie surowym zamkniętym (bez ociepleń ścian i dachu, bez instalacji elektrycznej, hydraulicznej czy grzewczej), o rozkładzie wnętrza zgodnym z widocznym szkicem, dodatkowo z ociepleniem podłogi
- Drzwi stalowe ocieplane, okna PCV, okiennice
- Schodki na antresolę
- Dwukrotne malowanie oraz impregnacja preparatem marki Drewnochron
- Krycie dachu membraną dachową oraz gontem bitumicznym marki Iko/Technonicol
- Podłogę pomalowaną na ten sam kolor co elewacja
- Transport i montaż na terenie całej Polski
- Zabezpieczenie ścian folią wiatroizolacyjną
- Prewencyjny system zabezpieczenia – atrapę kamery CCTV oraz tabliczkę ostrzegawczą „obiekt monitorowany”
Specyfikacja techniczna
| Powierzchnia domku | 70 m² |
| antresola | Tak |
Dodatkowe informacje
| Standard wykonania | stan surowy zamknięty |
| Technologia wykonania | szkieletowa kanadyjska |
| Gatunek drewna | Sosna i świerk |
| Standard drewna | Konstrukcyjne klasy C24 suszone komorowo, kluczowe elementy (słupy tarasowe, wieniec) wykonane z drewna KVH zapobiegającego procesowi pękania i odkształcania |
| Wymiar domku | 11,66m x 6m (~70 m2, mierzone po obrysie jego podstawy) |
| Powierzchnia zabudowy | ~70 m2 |
| Wysokość całkowita | ok. 600 cm |
| Wysokość ścian na parterze | 229 cm |
| Wysokość na poddaszu | 220 cm w kalenicy |
| Parter | Dwa osobne lokale, otwarta przestrzeń z wydzieloną łazienką |
| Rodzaj poddasza | Dwa osobne lokale, każdy wyposażone w antresolę |
| Ścianka kolankowa | Brak |
| Taras | Brak |
| Stolarka | Okna dwuszybowe PCV, drzwi tarasowe dwuszybowe PCV, drewniane drzwi wewnętrzne |
| Szkielet ścian | Kantówka 10cm x 4cm – nieocieplony |
| Rodzaj deskowania | Pióro-wpust, podłoga ocieplona |
| Grubość desek na dachu/elewacji/podłodze | 20mm |
| Wykończenie wewnętrzne ścian | Brak wykończenia, widoczny szkielet konstrukcyjny |
| Malowanie i impregnacja | 2 warstwy – bezbarwny podkład + preparat marki Drewnochron w wybranym kolorze – wzornik „kolory dla drewna STANDARD” |
| Pokrycie dachu | deskowanie, membrana dachowa oraz gont bitumiczny w wybranym kolorze – wzornik „pokrycia dachu STANDARD’’) |
| Grubość ściany w stanie surowym zamkniętym | 12cm |
| Grubość ściany w dodatkowo płatnym standardzie ocieplonym | 13,5cm |
| Grubość ściany w dodatkowo płatnym standardzie deweloperskim (ocieplonym i wyposażonym w instalację elektryczną i/lub hydrauliczną) | 17,3cm |
Dodatkowe opcje i możliwości
Wzorniki kolorów i materiałów

Wiśnia japońska
Drewnochron Impregnat Extra

Tik
Drewnochron Impregnat Extra

Palisander średni
Drewnochron Impregnat Extra

Orzech ciemny
Drewnochron Impregnat Extra

Dąb
Drewnochron Impregnat Extra

Cedr
Drewnochron Impregnat Extra
Skontaktuj się z nami w sprawie opcji
Nasze produkty można dostosować do indywidualnych potrzeb. Skontaktuj się z naszymi doradcami, aby omówić dostępne opcje i uzyskać wycenę.
Realizacje tego produktu
Masz pytania? Skontaktuj się z nami!
Podobne produkty

Szeregowy domek pod wynajem J1X2 – 60 m2

Domki na wynajem W1X4 – 80 m2 – 4 domki w 1

Domki na wynajem W2X4 – 100 m2 – 4 domki w 1

Kompleks domków pod wynajem J1X4 – 120 m2
Co mówią o nas klienci?
Blog

Działka leśna - czym jest i co można na niej postawić?

Czy na działce budowlanej można postawić domek letniskowy?

Dofinansowanie na domek letniskowy – jak je uzyskać w 2026 roku?
