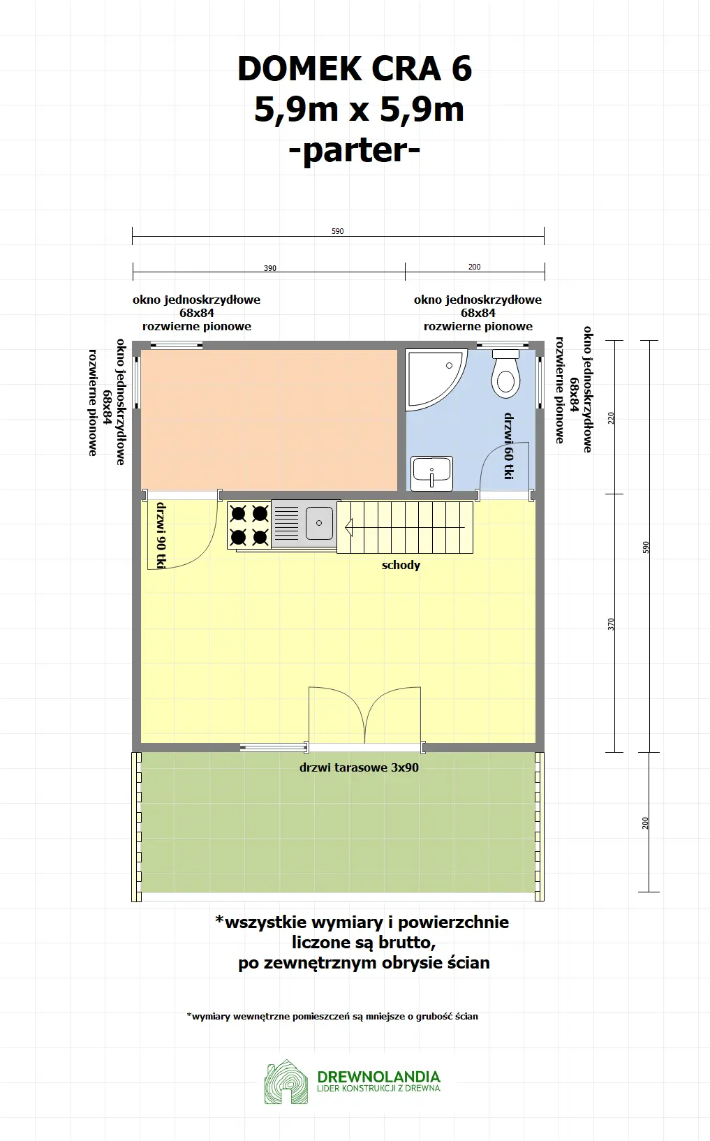
Porównaj produkty Drewnolandia - nowoczesne stodoły i domy drewniane do 70m², wykonane w technologii szkieletu drewnianego. Nie wymagają pozwolenia na budowę.

| Parametr | Domek Adam IV WT 2021 - 36 m² |
|---|---|
| Powierzchnia domku | 35 |
| Powierzchnia tarasu | 12 |
| antresola | Tak |
| Ilość sypialni | 2 |
| Ilość łazienek | 1 |


