Porównaj produkty Drewnolandia - nowoczesne stodoły i domy drewniane do 70m², wykonane w technologii szkieletu drewnianego. Nie wymagają pozwolenia na budowę.

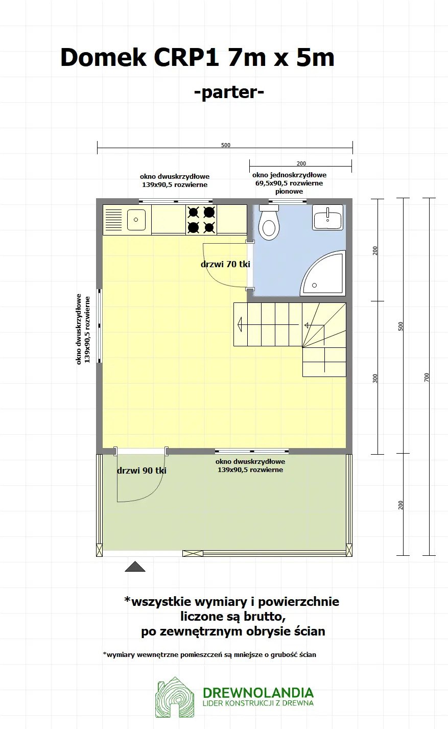
| Parametr | Domek Olaf WT2021 - 7x5 (35 m²) |
|---|---|
| Powierzchnia domku | 35 |
| poddasze | Tak |
| Ścianka kolankowa | 50 |
| Powierzchnia tarasu | 10 |
| Ilość sypialni | 2 |
| Ilość łazienek | 1 |

