










Wszystkie zdjęcia (10)
Domek mieszkalny całoroczny CRA5 PLUS - WT 2021 - 35 m²
Dodatkowe opcje
Opis produktu
Jeżeli szukasz niedrogiego domu parterowego dla siebie i swojej rodziny, a idea tiny house, dla zamieszkania stałego lub tymczasowego, nie jest ci obca – domek kanadyjski CRA5 PLUS jest właśnie dla Ciebie! W bryle zaledwie 35 m2 mieści się wszystko co niezbędne do życia, a zatem salon z aneksem kuchennym, łazienka i dwa osobne pomieszczenia, oddalone od siebie dla zachowania większej prywatności. W skład domku wchodzi także elegancki taras zadaszony pergolą. Budynek w całości ocieplony wełną o grubości 20 centymetrów, wyposażony w trzyszybowe okna PCV oraz komplet instalacji – hydrauliczną, elektryczną oraz grzewczą. Jednym słowem – komplet. Do prac wykończeniowych i meblowania można zatem przystąpić natychmiast po zakończeniu budowy.
Unikalne cechy
- Transport i montaż na terenie całego kraju
- Komplet mediów - elektryka, hydraulika, ogrzewanie
- Izolacja termiczna (ocieplenia) całego domku, w tym ścian działowych wewnątrz
- Przygotowywany indywidualny rysunek fundamentu, podejść elektrycznych i wodnych a także odpływów kanalizacyjnych
- Prewencyjny system zabezpieczenia - atrapa kamery CCTV oraz tabliczka ostrzegawcza
- Indywidualny doradca techniczny przydzielony do każdego Inwestora
- Możliwość dopasowania domku do wymagań Inwestora
Cena 187 200,00 zł obejmuje
- Domek w stanie surowym deweloperskim, całorocznym
- Drzwi zewnętrzne, drzwi wewnętrzne, okna, okiennice (okna obustronnie białe, drzwi zewnętrzne brązowe)
- Dwukrotne malowanie oraz impregnacja preparatem marki Drewnochron
- Krycie dachu membraną dachową oraz gontem bitumicznym marki Iko/Technonicol
- Rynny wraz z rurami spustowymi (brązowe)
- Podłogę pomalowaną na ten sam kolor co elewacja
- Izolację termiczną (ocieplenie) podłogi
- Izolację termiczną (ocieplenie) ścian
- Izolację termiczną (ocieplenie) dachu
- Instalację elektryczną wraz z gniazdkami
- Instalację hydrauliczną wraz z bojlerem
- Transport i montaż na terenie całego kraju
- Prewencyjny
system zabezpieczenia – atrapę kamery CCTV oraz tabliczkę ostrzegawczą
„obiekt monitorowany”
Specyfikacja techniczna
| Ilość łazienek | 1 |
| Ilość sypialni | 2 |
| Powierzchnia tarasu | 15m2 |
| Powierzchnia domku | 35 m² |
| parter | Tak |
Dodatkowe informacje
| Standard wykonania | Deweloperski, całoroczny |
| Technologia wykonania | Szkieletowa kanadyjska |
| Gatunek drewna | Sosna i świerk |
| Standard drewna | Konstrukcyjne klasy C24 suszone komorowo, kluczowe elementy (słupy tarasowe, wieniec) wykonane z drewna KVH zapobiegającego procesowi pękania i odkształcania |
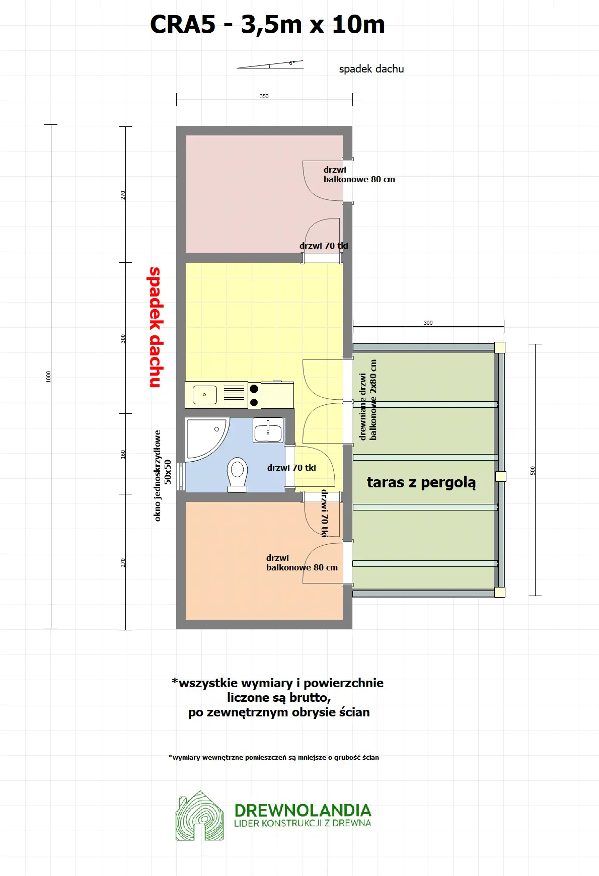
| Wymiar domku | 3,5m x 10m (35 m2, mierzone po obrysie jego podstawy) |
| Powierzchnia zabudowy | 35 m2 |
| Wysokość całkowita | 350 cm |
| Wysokość ścian na parterze | 250 cm w najniższym punkcie, 285cm w najwyższym punkcie |
| Parter | Cztery pomieszczenia – pomieszczenie 3,5m x 4,6m, w tym wydzielone mniejsze 2m x 1,6m; 3,5m x 2,7m; 3,5m x 2,7m |
| Rodzaj poddasza | Brak |
| Taras | 3m x 5m |
| Stolarka | 1 x okno PCV jednoskrzydłowe, 3 x drzwi drewniane, 3 x drzwi tarasowe PCV |
| Szkielet ścian | Kantówka 10cm x 4cm |
| Izolacja termiczna (ocieplenie) | Podłoga: wełna mineralna 10cm, ściany: wełna mineralna 20cm, dach: wełna mineralna 25cm |
| Powierzchnie izolowane (ocieplane) | Podłoga, ściany, dach |
| Rodzaj deskowania | Pióro-wpust |
| Grubość desek na dachu/elewacji/podłodze | 20mm |
| Wykończenie wewnętrzne ścian | Boazeria drewniana |
| Malowanie i impregnacja | 2 warstwy – bezbarwny podkład + preparat marki Drewnochron w wybranym kolorze – wzornik „kolory dla drewna STANDARD” |
| Pokrycie dachu | deskowanie, membrana dachowa oraz gont bitumiczny w wybranym kolorze – wzornik „pokrycia dachu STANDARD”) |
| Grubość ściany | 23,3 cm |
| Instalacje | Elektryczna (20 punktów elektrycznych), hydrauliczna (4 punkty) |
Dodatkowe opcje i możliwości
Wzorniki kolorów i materiałów

Wiśnia japońska
Drewnochron Impregnat Extra

Tik
Drewnochron Impregnat Extra

Palisander średni
Drewnochron Impregnat Extra

Orzech ciemny
Drewnochron Impregnat Extra

Dąb
Drewnochron Impregnat Extra

Cedr
Drewnochron Impregnat Extra
Opcje produktu
Wykonanie płyty fundamentowej
Ogrzewanie podłogowe foliami grzewczymi
Przedłużenie gwarancji do 36 miesięcy
Przedłużenie gwarancji do 48 miesięcy
Skontaktuj się z nami w sprawie opcji
Nasze produkty można dostosować do indywidualnych potrzeb. Skontaktuj się z naszymi doradcami, aby omówić dostępne opcje i uzyskać wycenę.
Realizacje tego produktu
Aktualności dotyczące produktu
Masz pytania? Skontaktuj się z nami!
Podobne produkty

Domek mieszkalny całoroczny CRA6 PREMIUM - WT 2021 - 36 m²

Domek mieszkalny całoroczny CRP3 PLUS - WT 2021 – 33 m²

Domek mieszkalny całoroczny CRA6 PLUS - WT 2021 - 36 m²

Domek mieszkalny całoroczny CRA4 PLUS - WT 2021 - 36 m²
Co mówią o nas klienci?
Blog

Działka leśna - czym jest i co można na niej postawić?

Czy na działce budowlanej można postawić domek letniskowy?

Dofinansowanie na domek letniskowy – jak je uzyskać w 2026 roku?
