Porównaj produkty Drewnolandia - nowoczesne stodoły i domy drewniane do 70m², wykonane w technologii szkieletu drewnianego. Nie wymagają pozwolenia na budowę.

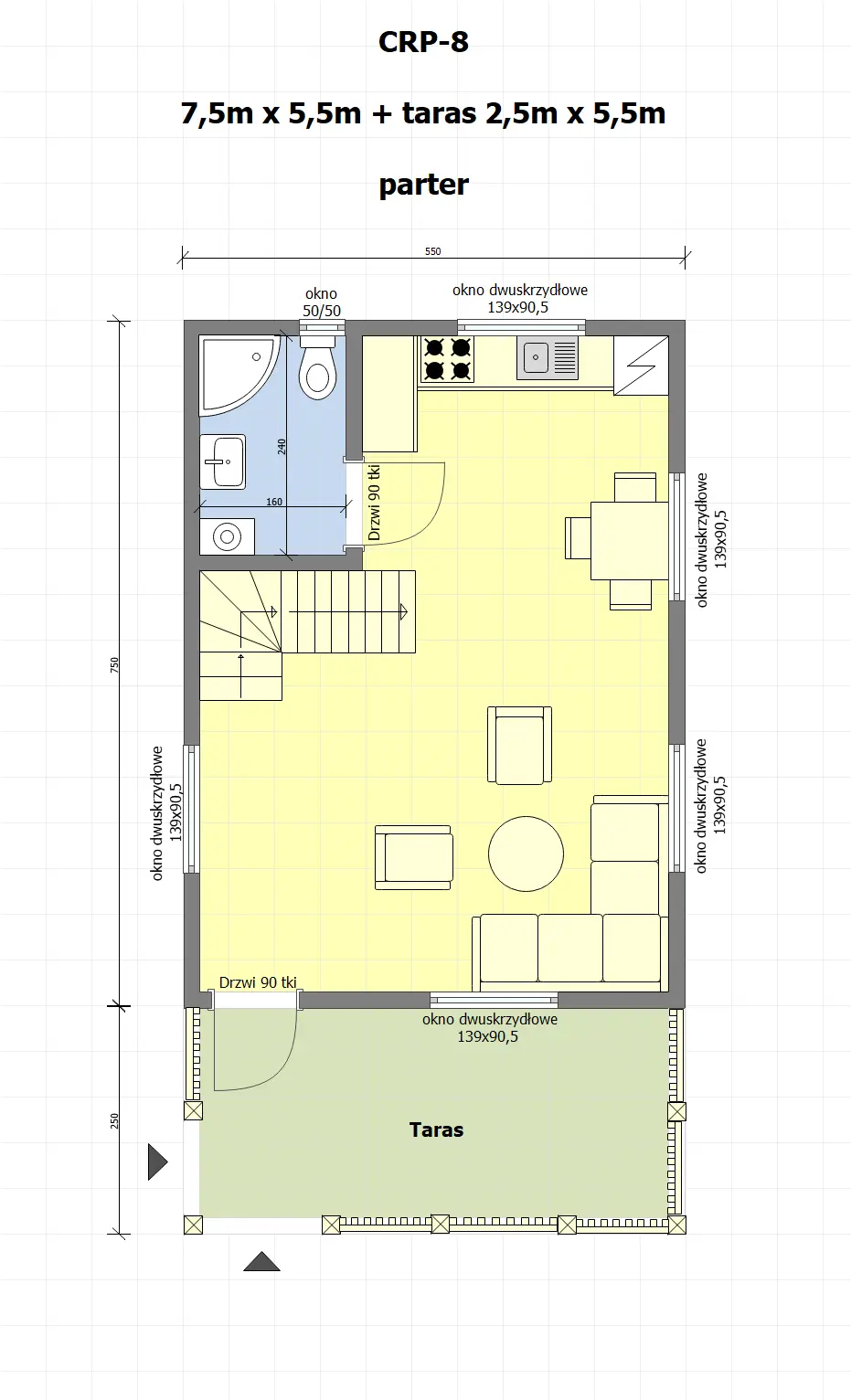
| Parametr | Domek CRP8 PLUS - WT 2021 – 55 m² |
|---|---|
| Ścianka kolankowa | 50 |
| Ilość łazienek | 1 |
| Ilość sypialni | 2 |
| Powierzchnia tarasu | 27,5 |
| Powierzchnia domku | 55 |
| poddasze | Tak |

