

Wszystkie zdjęcia (13)
Szeregowy domek pod wynajem A1X2 – 70 m2
Opis produktu
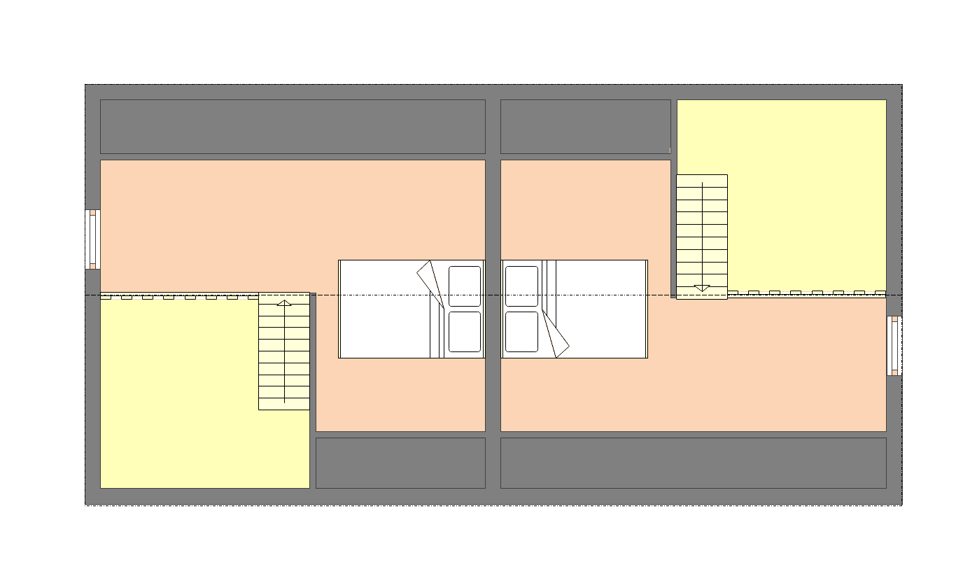
Szeregowe domki rekreacyjne pod wynajem typu A1X2 to szybki sposób na rozbudowę lub rozpoczęcie tworzenia własnego ośrodka wypoczynkowego. Dzięki dwóm osobnym wnętrzom zapewniają możliwość wynajmu dwóm grupom turystów przy zachowaniu pełnej niezależności każdej z nich. Parter każdego z wnętrz obejmuje salon, aneks kuchenny, łazienką oraz zamykaną sypialnię. Na górze natomiast rozciąga się antresola zapewniająca dodatkowa przestrzeń możliwą do zagospodarowania w charakterze sypialni. Dzięki temu w każdym z domków, w zależności od zagospodarowania wnętrza, może jednocześnie przebywać od 4 do 6 osób co daje sumaryczną liczbę nawet 12 turystów jednocześnie. Budynek w stanie surowym zamkniętym, do własnego ocieplenia ścian i dachu. W standardzie posiada ocieploną podłogę, dwuszybowe okna PCV, impregnację i malowanie elewacji oraz krycie dachu blachodachówką. Cena obejmuje także transport na terenie całej Polski oraz montaż wykwalifikowanej ekipy z ramienia producenta.
.Unikalne cechy
Bezpłatne przygotowanie fundamentu punktowego z betonowych bloczków
- Indywidualny rysunek lokalizacji podejść elektrycznych i wodnych w fundamencie oraz odpływów kanalizacyjnych
- Konstrukcja ścian zabezpieczona folią wiatroizolacyjną
- Prewencyjny system zabezpieczenia - atrapa kamery CCTV oraz tabliczka ostrzegawcza
- Indywidualny doradca techniczny przydzielony do każdego Inwestora
- Możliwość dopasowania domku do wymagań Inwestora
Cena 266 900,00 zł obejmuje
- Domek w stanie surowym zamkniętym (bez ociepleń ścian i dachu, bez instalacji elektrycznej, hydraulicznej czy grzewczej), o rozkładzie wnętrza zgodnym z widocznym szkicem, dodatkowo z ociepleniem podłogi
- Drzwi stalowe ocieplane, okna PCV, okiennice
- Schodki na antresolę
- Dwukrotne malowanie oraz impregnacja preparatem marki Drewnochron
- Krycie dachu membraną dachową oraz gontem bitumicznym marki Iko/Technonicol
- Podłogę pomalowaną na ten sam kolor co elewacja
- Transport i montaż na terenie całej Polski
- Zabezpieczenie ścian folią wiatroizolacyjną
- Prewencyjny system zabezpieczenia – atrapę kamery CCTV oraz tabliczkę ostrzegawczą „obiekt monitorowany”
Podobne produkty

Domki na wynajem W2X4 – 100 m2 – 4 domki w 1

Domek „bliźniak” na wynajem W1X2 – 40 m2

Kompleks domków pod wynajem J1X4 – 120 m2

Domki na wynajem W1X4 – 80 m2 – 4 domki w 1
Masz pytania? Skontaktuj się z nami!
Co mówią o nas klienci?
Blog

Nowe przepisy o warunkach zabudowy – co się zmieni w 2026 roku?

Decyzja o warunkach zabudowy – kiedy jest wymagana i jak ją uzyskać?

Warunki techniczne budynków – czym są? Wskaźniki i wytyczne
