

Wszystkie zdjęcia (7)
Dom mieszkalny całoroczny DREWNOLANDIA V2 - WT 2021
Dodatkowe opcje
Opis produktu
DREWNOLANDIA 2 PREMIUM to budynek mieszkalny o nowoczesnej bryle. Dzięki zastosowaniu pełnego poddasza, podzielonego na 4 pokoje, dom oferuje blisko 90m2 powierzchni użytkowej łącznie na obu poziomach. Ocieplenie ścian zewnętrznych izolacją o łącznej grubości 25cm zapewni komfortowe warunki mieszkalne nawet w najchłodniejsze dni. Wszystkie ściany wewnętrzne pokryte są płytami gipsowo-kartonowymi, dzięki czemu prace wykończeniowe rozpocząć można natychmiast po zakończeniu budowy. Trzyszybowe okna zapewnią doskonałą szczelność, a ocieplenie dachu wełną o grubości 25cm sprawi, że nie będziemy musieli martwić się o temperaturę wewnątrz, zarówno w zimie, jak i w upalne miesiące.
Unikalne cechy

Cena 264 000,00 zł obejmuje
- Domek w standardzie Rozwojowym (SSZ+++)
- Drzwi zewnętrzne, okna obustronnie białe, drzwi zewnętrzne brązowe
- Wykończenie zewnętrzne wełna fasadowa + biała elewacja
- Wykończenie wewnętrznie płytami gipsowo-kartonowymi
- Krycie dachu
- Schody gospodarcze
- Rynny wraz z rurami spustowymi
- Izolację termiczną (ocieplenie) ścian zewnętrznych
- Izolację termiczną (ocieplenie) ścian działowych
- Izolację termiczną (ocieplenie) dachu
- Instalację elektryczną
- Instalację hydrauliczną wraz z bojlerem
- Transport i montaż do 200km(powyżej wycena indywidualna)
- Kotwienie budynku do fundamentu przez podwalinę ścian
- Prewencyjny system zabezpieczenia – atrapę kamery CCTV oraz tabliczkę ostrzegawczą „obiekt monitorowany”
Wykonanie ocieplonej posadzki oraz systemu ogrzewania leży w gestii inwestora. Prace te są realizowane po zakończeniu montażu domu. Takie podejście pozwala na swobodny wybór metody ogrzewania domu oraz umożliwia wprowadzanie ewentualnych zmian w rozmieszczeniu instalacji w przyszłości. Wszystko po to, aby dom był dostosowany do Twoich potrzeb.
Specyfikacja techniczna
| powierzchnia użytkowa | 92 m² |
| Mieszkalny | Tak |
| poddasze | Tak |
| osobowy | 2-6 |
Dodatkowe informacje
| Standard wykonania | Rozwojowy (SSZ+++) |
| Technologia wykonania | Szkieletowa kanadyjska |
| Gatunek drewna | Sosna i świerk |
| Standard drewna | Konstrukcyjne klasy C24 suszone komorowo, kluczowe elementy (słupy tarasowe, wieniec) wykonane z drewna KVH zapobiegającego procesowi pękania i odkształcania |
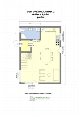
| Wymiar domku | 6,45 x 8,95 (58 m2, mierzone po obrysie jego podstawy) |
| Powierzchnia zabudowy | ~58 m2 |
| Wysokość całkowita | ok. 690 cm |
| Wysokość ścian na parterze | 250 cm |
| Wysokość ścianki kolankowej na poddaszu | 100 cm |
| Parter | Salon, łazienka, wiatrołap |
| Stolarka | 1 x okno dwuskrzydłowe 117cm cm x 117cm, 1 x okno jednoskrzydłowe 69 cm x 117cm, 1x drzwi dwuskrzydłowe tarasowe 210 cm x 207cm, 1x drzwi jednoskrzydłowe tarasowe 100 cm x 207cm, 1 x witryna FIX 190 cm x 202cm, 2 x okno balkonowe uchylne 100 cm x 202cm. Wszystkie okna komorowe trzyszybowe, obustronnie białe. Brak drzwi wewnętrznych. |
| Izolacja termiczna (ocieplenie) ścian zewnętrznych | Folia wiatroizolacyjna, wełna mineralna 15 cm, folia paroizolacyjna, wełna elewacyjna 10cm |
| Izolacja termiczna (ocieplenie) dachu | Wełna mineralna 25cm |
| Powierzchnie izolowane (ocieplane) | Ściany zewnętrzne, ściany działowe, dach |
| Wykończenie wewnętrzne ścian | Płyty gipsowo-kartonowe (bez szpachlowania) |
| Wykończenie elewacji | Wełna elewacyjna + wykończenie białe |
| Pokrycie dachu | blachodachówka, bez deskowania |
| Grubość ściany | 32cm |
| Grubość ściany wewnętrznej | 18,5 cm |
| Instalacje | Elektryczna (55 punktów elektrycznych), hydrauliczna (5 punkty) |
Dodatkowe opcje i możliwości
Wzorniki kolorów i materiałów

Wiśnia japońska
Drewnochron Impregnat Extra

Tik
Drewnochron Impregnat Extra

Cedr
Drewnochron Impregnat Extra

Palisander średni
Drewnochron Impregnat Extra

Orzech ciemny
Drewnochron Impregnat Extra

Dąb
Drewnochron Impregnat Extra
Opcje produktu
Wykonanie płyty fundamentowej
Skontaktuj się z nami w sprawie opcji
Nasze produkty można dostosować do indywidualnych potrzeb. Skontaktuj się z naszymi doradcami, aby omówić dostępne opcje i uzyskać wycenę.
Realizacje tego produktu
Aktualności dotyczące produktu
Podobne produkty
Masz pytania? Skontaktuj się z nami!
Co mówią o nas klienci?
Blog

Działka budowlana – jakie warunki musi spełniać i co można na niej postawić?

Rodzaje działek w Polsce – co warto wiedzieć?

MPZP – co to jest i jak sprawdzić Miejscowy Plan Zagospodarowania Przestrzennego?




