




Wszystkie zdjęcia (4)
Najtańszy Dom mieszkalny całoroczny W Polsce CLT2 - WT 2021 – 70 m²
Dodatkowe opcje
Opis produktu
Ten innowacyjny dom mieszkalny to najtańsze w Polsce rozwiązanie spełniające standard WT2021 przy 70 m² zabudowy, stworzone z myślą o osobach szukających maksymalnie ekonomicznego sposobu na własne mieszkanie. Wykonany w technologii szkieletowej z certyfikowanego drewna konstrukcyjnego C24, zapewnia trwałość porównywalną z budynkami murowanymi, jednocześnie umożliwiając realizację inwestycji w rekordowo krótkim czasie – od rozpoczęcia prac do przekazania kluczy mija zaledwie kilkanaście dni.
Kompletny pakiet obejmuje profesjonalnie wykonaną płytę fundamentową(wycena indywidualna), ocieplenie ścian i dachu wełną mineralną, montaż trzyszybowych okien PCV oraz stalowych drzwi ocieplanych, a także pełny zestaw instalacji: elektrycznej, hydraulicznej i grzewczej w oparciu o nowoczesne systemy ciepła powietrze-powietrze. W standardzie znajduje się również biała elewacja oraz wykończenie wnętrz płytami gipsowo-kartonowymi.
To kompletne, gotowe do zamieszkania rozwiązanie dla wszystkich, którzy chcą wejść w posiadanie własnego domu przy możliwie najniższym koszcie, bez kompromisów w zakresie funkcjonalności całorocznej, komfortu i zgodności z aktualnymi wymaganiami prawnymi.
Unikalne cechy
- Gwarancja niezmiennej ceny po podpisaniu umowy – pełna ochrona przed podwyżkami materiałów i kosztów robocizny.
- Pisemna, aż 30-letnia gwarancja na konstrukcję budynku – jedna z najdłuższych na rynku, potwierdzona dokumentem odbiorczym.
- Gwarancja terminu rozpoczęcia montażu – wpisana do umowy, co eliminuje opóźnienia typowe dla konkurencyjnych firm.
- Dedykowany doradca techniczny dla każdego inwestora – osobiste wsparcie od pierwszej rozmowy do zakończenia budowy.
- Kamera IP do wglądu budowy – inwestor ma stały pogląd na postęp prac z telefonu, z dowolnego miejsca na świecie.
- Halogen z panelem solarnym w zestawie – automatyczne doświetlenie budynku i działki po zmroku, bez dodatkowego zużycia energii.
- Ustandaryzowana jakość prefabrykatów – produkcja w kontrolowanych warunkach wewnątrz hali, bez wpływu pogody na konstrukcję.
- Serwis posprzedażowy – szybka reakcja, gdy inwestor potrzebuje pomocy po odbiorze budynku.
- Możliwość wykonania fundamentu przez nasz zespół – oszczędność czasu i większa spójność całej inwestycji.
- Opcja kompleksowej adaptacji projektu w naszej firmie – wszystkie formalności i zmiany w jednym miejscu, bez szukania zewnętrznych wykonawców.
- Możliwość zlecenia szpachlowania i wykończenia płyt g-k – idealnie przygotowane ściany pod malowanie, bez angażowania dodatkowych ekip.
Cena 220 000,00 zł obejmuje
- Opracowanie kompletnego projektu budowlanego (do adaptacji)
- Dostawa oraz montaż prefabrykowanych modułów budynku na terenie całej Polski, bezpośrednio na działce inwestora..
- Montaż zewnętrznej stolarki okiennej i drzwiowej w wysokim standardzie.
- Ściany zewnętrzne prefabrykowane, wykończone od zewnątrz z elementami drewnianej elewacji, a wewnątrz obudowane płytami gipsowo-kartonowymi..
- Ściany działowe prefabrykowane, z jednej strony obite płytą OSB, odizolowane akustycznie wełną i obustronnie wykończone płytą g-k.
- Prefabrykowany strop z przygotowaną konstrukcją pod podłogę strychu, od spodu wykończony płytą g-k.
- Wykonanie kompletnej konstrukcji dachowej wraz z pokryciem blachodachówką, rynny, obróbki oraz drewniane podbitki.
- Wykonanie instalacji wodno-kanalizacyjnej.
- Montaż instalacji grzewczej typu powietrze–powietrze.
- Wykonanie pełnej instalacji elektrycznej z gniazdkami i przełącznikami.
- Wykonanie systemu wentylacji.
- Przygotowanie podłogi w standardzie deweloperskim.
Po stronie inwestora pozostaje:
- Adaptacja projektu do warunków lokalnych.
- Uzyskanie pozwolenia na budowę.
- Przygotowanie fundamentu lub zlecenie jego wykonania naszej firmie..
- Szpachlowanie i malowanie sufitów oraz ścian.
- Wykonanie białego montażu hydraulicznego.
- Doprowadzenie przyłączy zewnętrznych – prąd, woda, kanalizacja.
- Wykończenie pod klucz, czyli m.in. montaż podłóg, drzwi wewnętrznych, zabudowy meblowej i płytek.
Powyższa oferta ma charakter informacyjny i nie stanowi oferty handlowej w rozumieniu art.66 §1 kodeksu cywilnego, jest jedynie zaproszeniem do rozmowy.
Specyfikacja techniczna
| Powierzchnia tarasu | 0m2 |
| Ilość łazienek | 1 |
| Ścianka kolankowa | 0cm |
| Ilość sypialni | 2 |
| Powierzchnia domku | 70 m² |
Dodatkowe informacje
| Standard wykonania | Deweloperski, całoroczny |
| Technologia wykonania | szkieletowa kanadyjska |
| Gatunek drewna | Sosna i świerk |
| Standard drewna | Konstrukcyjne klasy C24 suszone komorowo, kluczowe elementy (słupy tarasowe, wieniec) wykonane z drewna KVH zapobiegającego procesowi pękania i odkształcania |
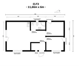
| Wymiar domku | 6m x 11,66m (~70 m2, mierzone po obrysie jego podstawy) |
| Powierzchnia zabudowy | 70 m2 |
| Wysokość całkowita | ok. 450 cm |
| Wysokość ścian | 250 cm |
| Pomieszczenia | Salon, dwa pokoje, przedpokój oraz łazienka |
| Taras | Brak |
| Stolarka | PCV, wejściowe drzwi stalowe ocieplane. Wszystkie okna komorowe trzyszybowe. |
| Izolacja termiczna (ocieplenie) | Podłoga: wełna mineralna 10cm, ściany: wełna mineralna 20cm, dach: wełna mineralna 25cm |
| Wykończenie wewnętrzne ścian | Płyty gipsowo-kartonowe |
| Wykończenie elewacji | wykończenie białe |
| Pokrycie dachu | Blachodachówka |
| Grubość ściany zewnętrznej | 27 cm |
| Grubość ściany wewnętrznej | 17,3 cm |
| Instalacje | Elektryczna (40 punktów elektrycznych), hydrauliczna (5 punktów), grzewcza |
Dodatkowe opcje i możliwości
Wzorniki kolorów i materiałów

Wiśnia japońska
Drewnochron Impregnat Extra

Tik
Drewnochron Impregnat Extra

Palisander średni
Drewnochron Impregnat Extra

Orzech ciemny
Drewnochron Impregnat Extra

Dąb
Drewnochron Impregnat Extra

Cedr
Drewnochron Impregnat Extra
Opcje produktu
Szpachlowania i wykończenia płyt g-k
Adaptacja projektu do warunków lokalnych
Wykonanie płyty fundamentowej
Skontaktuj się z nami w sprawie opcji
Nasze produkty można dostosować do indywidualnych potrzeb. Skontaktuj się z naszymi doradcami, aby omówić dostępne opcje i uzyskać wycenę.
Realizacje tego produktu
Aktualności dotyczące produktu
Masz pytania? Skontaktuj się z nami!
Podobne produkty

Dom mieszkalny całoroczny CRK1 PREMIUM - WT 2021 – 70 m²

Drewniany domek rekreacyjny całoroczny CRK18 PLUS - jednorodzinny - 48 m²

CLT4 Najtańsze ~100 m² mieszkalne w Polsce — dom całoroczny w standardzie WT 2021

Dom mieszkalny całoroczny CRK3 PLUS - WT 2021 – 70 m²
Co mówią o nas klienci?
Blog

Działka leśna - czym jest i co można na niej postawić?

Czy na działce budowlanej można postawić domek letniskowy?

Dofinansowanie na domek letniskowy – jak je uzyskać w 2026 roku?
