










Wszystkie zdjęcia (10)
Domek rekreacyjny całoroczny CRP12 - 35m2
Dodatkowe opcje
Opis produktu
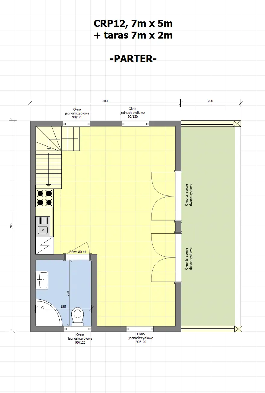
Domek letniskowy CRP12 to idealny wybór dla osób, dla których ważne jest funkcjonale urządzenie powierzchni użytkowej. W domku wydzielony jest przestronny salon wraz z miejscem na aneks kuchenny. Przeszklone drzwi tarasowe zapewniają dobre oświetlenie zarówno parteru jak i antresoli. Schody zabiegowe w salonie prowadzą na poddasze z dwiema sypialniami . Domek posiada również zadaszony taras o wymiarach 7m x 2m oraz niewielki balkon. Taki domek to świetne rozwiązanie dla osób, które pragną wypoczywać w komfortowych warunkach.
Unikalne cechy
- Możliwość pełnej personalizacji budynku — jako producent możemy zmienić wymiary, kąt dachu, układ wnętrz, rodzaj stolarki, sposób ocieplenia oraz zakres instalacji elektrycznej, hydraulicznej i ogrzewania, przygotowując domek również w standardzie mieszkalnym WT2021 z ociepleniem wełną 20cm i 25cm.
- Transport i montaż na terenie całej Polski W CENIE
Realizujemy dostawę i kompletny montaż budynku w każdym regionie kraju - Gwarancja niezmiennej ceny po podpisaniu umowy – pełna ochrona przed podwyżkami materiałów i kosztów robocizny.
- Pisemna, aż 15-letnia gwarancja na konstrukcję budynku – jedna z najdłuższych na rynku, potwierdzona dokumentem odbiorczym.
- Gwarancja terminu rozpoczęcia montażu – wpisana do umowy, co eliminuje opóźnienia typowe dla konkurencyjnych firm.
- Dedykowany doradca techniczny dla każdego inwestora – osobiste wsparcie od pierwszej rozmowy do zakończenia budowy.
- Prewencyjny system zabezpieczenia placu budowy W standardzie oferujemy atrapę kamery CCTV oraz tabliczkę informującą o monitoringu , co skutecznie odstrasza osoby postronne i minimalizuje ryzyko niepożądanych zdarzeń na działce.
- Serwis posprzedażowy – szybka reakcja, gdy inwestor potrzebuje pomocy po odbiorze budynku.
- Malowanie elewacji w wybranym kolorze w cenie podstawowej - bez sztucznego zaniżania ceny i bez ukrytych dopłat
- Gwarancja najkorzystniejszej oferty - masz tańszą ofertę na od konkurencji? Prześlij ją, a my przebijemy cenę lub zaproponujemy wyższy standard w tej samej kwocie.
Cena 203 000,00 zł obejmuje
- Dostawa oraz montaż prefabrykowanych modułów domku bezpośrednio na działce inwestora.
- Ściany zewnętrzne prefabrykowane, wykończone od zewnątrz deską elewacyjną, ocieplenie, wewnątrz wykończenia boazerią
- Montaż zewnętrznej stolarki okiennej PCV i drzwiowej
- Ściany działowe prefabrykowane, odizolowane akustycznie wełną i dwustronnie wykończone boazerią.
- Podłoga w standardzie deweloperskim(technicznym) pomalowana na ten sam kolor co elewacja.
- Wykonanie kompletnej konstrukcji dachowej ocieplonej wełną, wraz z pełnym deskowaniem i pokryciem gontem bitumicznym marki IKO
- Rynny wraz z rurami spustowymi (brązowe)
- Izolację termiczną (ocieplenie) podłogi 10cm
- Izolację termiczną (ocieplenie) ścian zewnętrznych 15cm
- Izolację akustyczną ścian wewnętrznych 10cm
- Izolację termiczną (ocieplenie) dachu 20cm
- Instalacja elektryczna: kompletna skrzynka rozdzielcza z bezpiecznikami, białe gniazdka i przełączniki, 20 punktów elektrycznych
- Instalacja hydrauliczna: kompletne rozprowadzenie instalacji, bojler Ariston Velis Evo 80 oraz profesjonalny pomiar ciśnieniowy całego układu
- Dwukrotne
malowanie preparatem marki Drewnochron
Po stronie inwestora pozostaje:
- Przygotowanie fundamentu przed montażem
- Izolacja przeciwwilgociowa na całej powierzchni fundamentu
- Doprowadzenie przyłączy zewnętrznych – prąd, woda, kanalizacja
Inne rozmiary
- Istnieje możliwość przygotowania wyceny na domek w indywidualnie wybranym rozmiarze
Specyfikacja techniczna
| Powierzchnia domku | 35 m² |
| antresola | Tak |
| Powierzchnia tarasu | 14m2 |
| Ścianka kolankowa | 110cm |
| Ilość sypialni | 3 |
| Ilość łazienek | 1 |
Dodatkowe informacje
| Standard wykonania | Deweloperski, całoroczny |
| Technologia wykonania | szkieletowa kanadyjska |
| Gatunek drewna | Sosna i świerk |
| Standard drewna | Konstrukcyjne klasy C24 suszone komorowo, kluczowe elementy (słupy tarasowe, wieniec) wykonane z drewna KVH zapobiegającego procesowi pękania i odkształcania |
| Wymiar domku | 7m x 5m (35 m2, mierzone po obrysie jego podstawy) |
| Powierzchnia zabudowy | 35 m2 |
| Wysokość całkowita | ~600 cm |
| Wysokość ścian na parterze | 240 cm |
| Parter | Otwarta przestrzeń ze schodami na antresolę oraz wydzieloną łazienką |
| Rodzaj poddasza | pełne poddasze |
| Ścianka kolankowa na poddaszu | ~110 cm |
| Taras | 2m x 7m oraz balkon 4m x 1,2m |
| Stolarka | Okna PCV dwuszybowe |
| Szkielet ścian | Kantówka 10cm x 4cm |
| Izolacja termiczna (ocieplenie) | Folia wiatroizolacyjna, wełna mineralna 10 cm, folia paroizolacyjna |
| Powierzchnie izolowane (ocieplane) | Podłoga, ściany, dach |
| Rodzaj deskowania | Pióro-wpust |
| Grubość desek na dachu/elewacji/podłodze | 20mm |
| Wykończenie wewnętrzne ścian | Boazeria drewniana |
| Malowanie i impregnacja | 2 warstwy – bezbarwny podkład + preparat marki Drewnochron w wybranym kolorze – wzornik „kolory dla drewna STANDARD” |
| Pokrycie dachu | deskowanie, membrana dachowa oraz gont bitumiczny w wybranym kolorze – wzornik „pokrycia dachu STANDARD”) |
| Grubość ściany | 17,3 cm |
| Instalacje | Elektryczna (30 punktów elektrycznych), hydrauliczna |
Dodatkowe opcje i możliwości
Wzorniki kolorów i materiałów

Wiśnia japońska
Drewnochron Impregnat Extra

Tik
Drewnochron Impregnat Extra

Palisander średni
Drewnochron Impregnat Extra

Orzech ciemny
Drewnochron Impregnat Extra

Dąb
Drewnochron Impregnat Extra

Cedr
Drewnochron Impregnat Extra
Opcje produktu
Wykonanie płyty fundamentowej
Ogrzewanie podłogowe foliami grzewczymi
Pokrycie dachu gontem premium (paleta premium w sekcji "wzorniki")
Pokrycie dachu blachodachówką falistą
Komin modułowy
Piecyk wolnostojący typu koza
Instalacja grzewcza – grzejniki elektryczne
Przedłużenie gwarancji do 36 miesięcy
o szczegóły pytaj handlowców
Przedłużenie gwarancji do 48 miesięcy
o szczegóły pytaj handlowców
Skontaktuj się z nami w sprawie opcji
Nasze produkty można dostosować do indywidualnych potrzeb. Skontaktuj się z naszymi doradcami, aby omówić dostępne opcje i uzyskać wycenę.
Realizacje tego produktu

Dom całoroczny CRP12
Kolor elewacji: Dąb Drewnochron Impregnat Extra
Pokrycie dachu: Gont czarny
Link do strony ofertowej oryginalnej wersji budynku TUTAJ
Masz pytania? Skontaktuj się z nami!
Podobne produkty

Domek rekreacyjny całoroczny CRP2 - 35 m²

Domek rekreacyjny całoroczny CRP9 - 35 m²

Domek rekreacyjny całoroczny CRP8 - 55m²

Domek rekreacyjny całoroczny CRP11 - 35m²
Co mówią o nas klienci?
Blog

Działka leśna - czym jest i co można na niej postawić?

Czy na działce budowlanej można postawić domek letniskowy?

Dofinansowanie na domek letniskowy – jak je uzyskać w 2026 roku?

