




















Wszystkie zdjęcia i filmy (21)
Domek Adam III SSO 7m x 5m
Warianty produktu
Dodatkowe opcje
Opis produktu
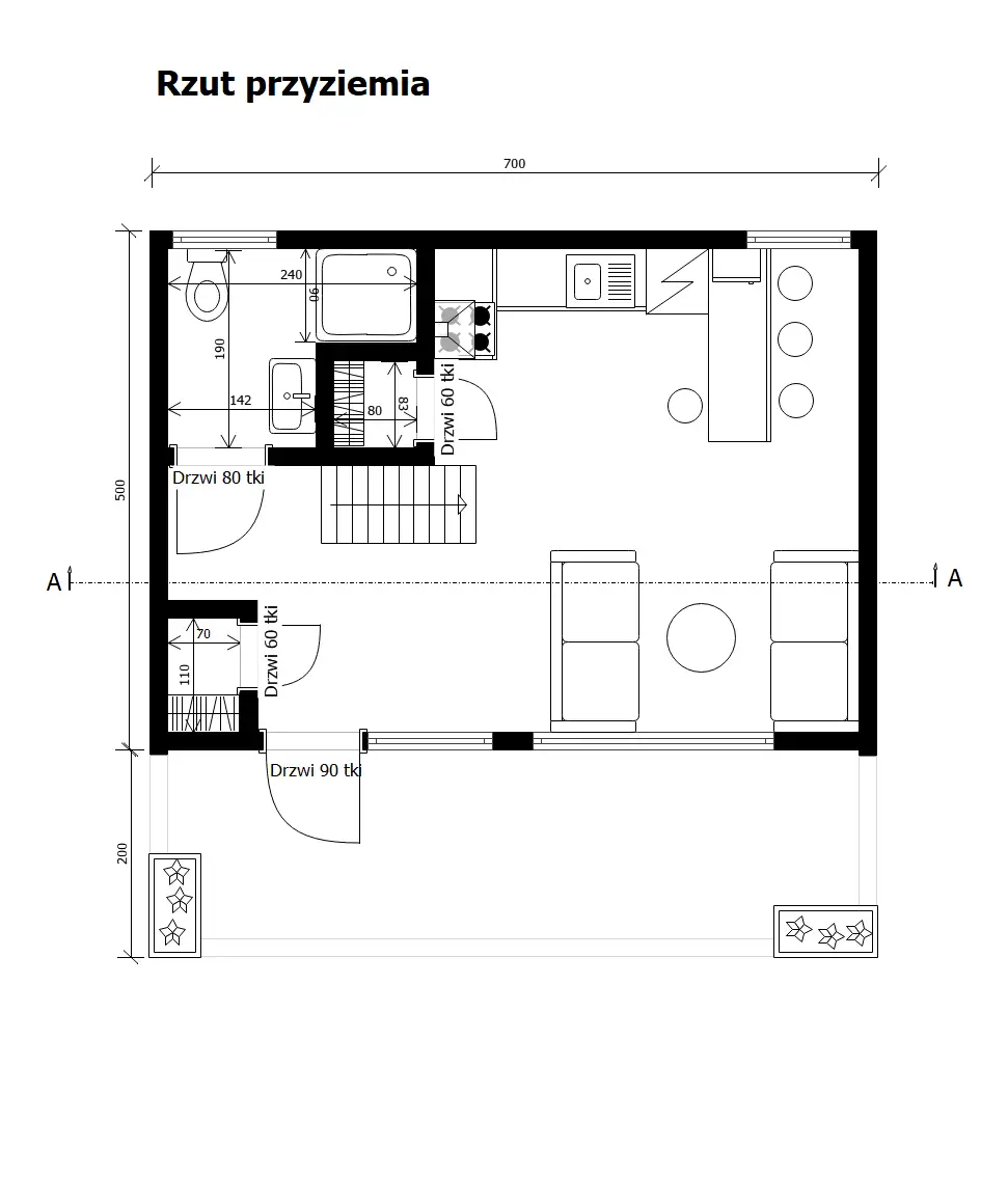
Domek drewniany Adam III SSO to nowoczesna konstrukcja drewniana o wymiarach 7m x 5m, która składa się na pełne wykorzystanie 35 metrów kwadratowych powierzchni możliwej do budowy bez pozwolenia. Domek Adam III charakteryzuje jednak niecodzienny kształt, którego charakterystycznymi punktami jest wysunięty daleko okap dachu na froncie, a także bardzo duże przeszklenia gwarantujące doskonałe doświetlenie przestronnego wnętrza domku. Wewnątrz z kolei czeka salon, wydzielone pomieszczenie przeznaczone np. na sypialnię, a także łazienka i dwa schowki. Antresola z kolei to dodatkowa powierzchnia do zagospodarowania według własnego uznania. Domek w stanie surowym zamkniętym, z możliwością adaptacji do formy wielosezonowej, całorocznej.
Możliwość realizacji w wariancie całorocznym – do postawienia zarówno na działce rekreacyjnej, jak i budowlanej.
Unikalne cechy
- Możliwość pełnej personalizacji budynku — jako producent możemy zmienić wymiary, kąt dachu, układ wnętrz, rodzaj stolarki, sposób ocieplenia oraz zakres instalacji elektrycznej, hydraulicznej i ogrzewania, przygotowując domek również w standardzie całorocznym lub mieszkalnym WT2021.
- Transport i montaż na terenie całej Polski
Realizujemy dostawę i kompletny montaż budynku w każdym regionie kraju (wycena indywidualna) - Gwarancja niezmiennej ceny po podpisaniu umowy – pełna ochrona przed podwyżkami materiałów i kosztów robocizny.
- Pisemna, aż 15-letnia gwarancja na konstrukcję budynku – jedna z najdłuższych na rynku, potwierdzona dokumentem odbiorczym.
- Gwarancja terminu rozpoczęcia montażu – wpisana do umowy, co eliminuje opóźnienia typowe dla konkurencyjnych firm.
- Dedykowany doradca techniczny dla każdego inwestora – osobiste wsparcie od pierwszej rozmowy do zakończenia budowy.
- Prewencyjny system zabezpieczenia placu budowy W standardzie oferujemy atrapę kamery CCTV oraz tabliczkę informującą o monitoringu , co skutecznie odstrasza osoby postronne i minimalizuje ryzyko niepożądanych zdarzeń na działce.
- Serwis posprzedażowy – szybka reakcja, gdy inwestor potrzebuje pomocy po odbiorze budynku.
- Stylowe okiennice w standardzie – dodają charakteru budynkowi, poprawiają izolację i zwiększają jego bezpieczeństwo
- Malowanie elewacji w wybranym kolorze — pełna personalizacja wyglądu budynku zgodnie z preferencjami inwestora.
Cena 60 000,00 zł obejmuje
- Stan surowy otwarty
- Ściany zewnętrzne prefabrykowane, wykończone od zewnątrz deską elewacyjną, a wewnątrz bez wykończenia
- Ściany działowe prefabrykowane, i jednostronnie wykończone boazerią.
- Wykonanie kompletnej konstrukcji dachowej wraz z pełnym deskowaniem i pokryciem gontem bitumicznym marki IKO
- Antresola, podłoga na antresoli wykończona deską 2cm
Cena nie obejmuje
- Podłogi
- Stolarki okiennej
- Drzwi zewnętrznych
- Drzwi wewnętrznych
- Malowania i impregnacji
Po stronie inwestora pozostaje:
- Przygotowanie fundamentu przed montażem
- Izolacja przeciwwilgociowa na całej powierzchni fundamentu
- Doprowadzenie przyłączy zewnętrznych – prąd, woda, kanalizacja
- Montaż okien i drzwi
- Wykonanie podłogi
Specyfikacja techniczna
Powierzchnia domku | 35 m² |
antresola | Tak |
Powierzchnia tarasu | 14m2 |
Ilość sypialni | 1 |
Ilość łazienek | 1 |
Dodatkowe informacje
| Standard wykonania | stan surowy otwarty |
| Technologia wykonania | szkieletowa kanadyjska |
| Gatunek drewna | Sosna i świerk |
| Standard drewna | Konstrukcyjne klasy C24 suszone komorowo, kluczowe elementy (słupy tarasowe, wieniec) wykonane z drewna KVH zapobiegającego procesowi pękania i odkształcania |
| Wymiar domku | 7m x 5m (35 m2, mierzone po obrysie jego podstawy) |
| Powierzchnia zabudowy | 35 m2 |
| Wysokość całkowita | 500 cm |
| Wysokość ścian na parterze | 229 cm |
| Wysokość na antresoli | 190cm w kalenicy |
| Parter | Otwarta przestrzeń 5m x 7m m z wydzieloną łazienką 2m x 2m oraz schowki przy wejściu i w kuchni |
| Rodzaj poddasza | Antresola 16,6 m2 |
| Taras | 7m x 2m |
| Stolarka | brak |
| Schodki młynarskie | brak |
| Szkielet ścian | Kantówka 10cm x 4cm – nieocieplony |
| Rodzaj deskowania | Pióro-wpust |
| Grubość desek na dachu/elewacji/podłodze | 20mm |
| Wykończenie wewnętrzne ścian | Brak wykończenia, widoczny szkielet konstrukcyjny |
| Malowanie i impregnacja | Brak |
| Pokrycie dachu | deskowanie, membrana dachowa oraz gont bitumiczny w wybranym kolorze – wzornik „pokrycia dachu STANDARD”) |
| Grubość ściany w stanie surowym otwartym | 12cm |
| Grubość ściany w dodatkowo płatnym standardzie ocieplonym | 13,5cm |
| Grubość ściany w dodatkowo płatnym standardzie deweloperskim (ocieplonym i wyposażonym w instalację elektryczną i/lub hydrauliczną) | 17,3cm |
Dodatkowe opcje i możliwości
Wzorniki kolorów i materiałów

Wiśnia japońska
Drewnochron Impregnat Extra

Tik
Drewnochron Impregnat Extra

Palisander średni
Drewnochron Impregnat Extra

Orzech ciemny
Drewnochron Impregnat Extra

Dąb
Drewnochron Impregnat Extra

Cedr
Drewnochron Impregnat Extra
Opcje produktu
Transport wyceniany indywidualnie 6zl/km
Montaż
Wykonanie płyty fundamentowej
Przedłużenie gwarancji do 36 miesięcy
o szczegóły pytaj handlowców
Przedłużenie gwarancji do 48 miesięcy
o szczegóły pytaj handlowców
15-letnia gwarancja na konstrukcję
Gwarancja zostanie potwierdzona po otrzymaniu przez nas zdjęć wykończonego i urządzonego wnętrza. Czas na przesłanie zdjęć to maksymalnie 4 lata od montażu domku.
Drewnochron - Kolory - Standard
Malowanie lakierobejcą (paleta premium w sekcji "wzorniki")
Pokrycia dachu STANDARD - Gont prostokąt
Pokrycia dachu STANDARD - Gont Karpiówka
Obróbki blacharskie dachu(opierzenie - dotyczy gontu Standard)
Pokrycie dachu gontem premium + obróbki blacharskie w cenie (paleta premium w sekcji "wzorniki")
Pokrycie dachu blachodachówką falistą + obróbki blacharskie w cenie
Pokrycie dachu blachodachówką Janosik z posypką + obróbki blacharskie
Drzwi drewniane - Takie są w cenie domku
Okno drewniane - Takie są w cenie domku
Okna PCV kolor BIAŁY - BIAŁY
Okna PCV kolor KOLOR - KOLOR
Rynny wraz z rurami spustowymi (brązowe)
Drzwi zewnętrzne ocieplane (brązowe)
Drzwi stalowe - kolor inny
Podłoga
Okiennice
Zawiasy ozdobne na okiennicach - czarne
Drzwi wewnętrzne - drewniane
Obróbka blacharska fundamentu - okapniki
Skontaktuj się z nami w sprawie opcji
Nasze produkty można dostosować do indywidualnych potrzeb. Skontaktuj się z naszymi doradcami, aby omówić dostępne opcje i uzyskać wycenę.
Realizacje tego produktu
Masz pytania? Skontaktuj się z nami!
Co mówią o nas klienci?
Blog
Poznaj najważniejsze informacje o drewnie, pielęgnacji i bezpieczeństwie naszych drewnianych domków od Drewnolandi




