









Wszystkie zdjęcia i filmy (10)
Domek Dominik SZZ- 35m2 (SSO)
Warianty produktu
Dodatkowe opcje
Opis produktu
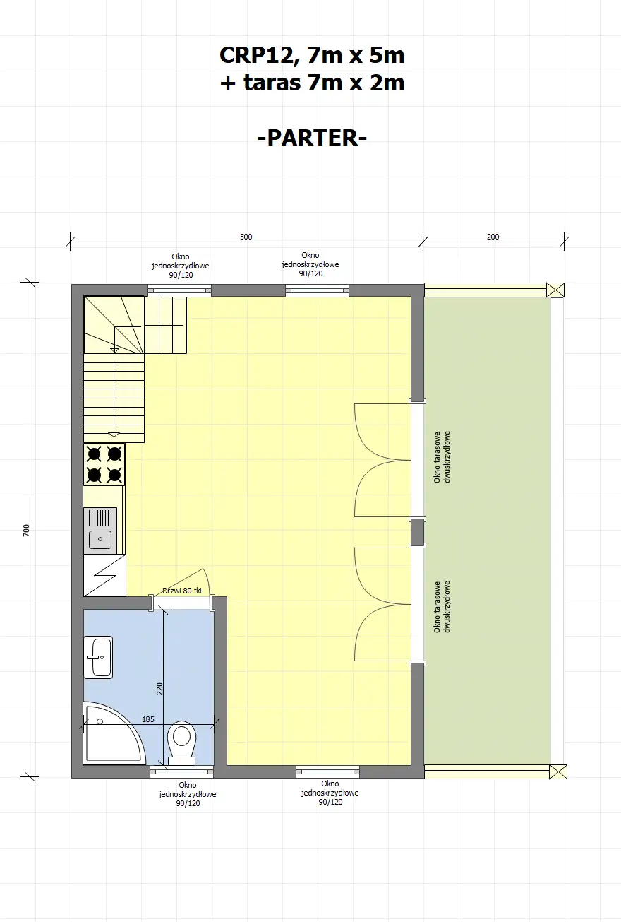
Domek letniskowy Dominik to idealny wybór dla osób, dla których ważne jest funkcjonale urządzenie powierzchni użytkowej. W domku wydzielony jest przestronny salon wraz z miejscem na aneks kuchenny. Przeszklone drzwi tarasowe zapewniają dobre oświetlenie zarówno parteru jak i antresoli. Schody zabiegowe w salonie prowadzą na poddasze z dwiema sypialniami . Domek posiada również zadaszony taras o wymiarach 7m x 2m oraz niewielki balkon. Taki domek to świetne rozwiązanie dla osób, które pragną wypoczywać w komfortowych warunkach.
Unikalne cechy
- Możliwość pełnej personalizacji budynku - Jako producent możemy zmienić wymiary, kąt dachu, układ wnętrz, rodzaj stolarki, sposób ocieplenia oraz zakres instalacji elektrycznej, hydraulicznej i ogrzewania, przygotowując domek również w standardzie całorocznym lub mieszkalnym WT2021.
- Transport i montaż na terenie całej Polski - Realizujemy dostawę i kompletny montaż budynku w każdym regionie kraju (wycena indywidualna).
- Gwarancja niezmiennej ceny po podpisaniu umowy - Pełna ochrona przed podwyżkami materiałów i kosztów robocizny.
- Pisemna, aż 15-letnia gwarancja na konstrukcję budynku - Jedna z najdłuższych na rynku, potwierdzona dokumentem odbiorczym.
- Gwarancja terminu rozpoczęcia montażu - Wpisana do umowy, co eliminuje opóźnienia typowe dla konkurencyjnych firm.
- Dedykowany doradca techniczny dla każdego inwestora - Osobiste wsparcie od pierwszej rozmowy do zakończenia budowy.
- Prewencyjny system zabezpieczenia placu budowy - W standardzie oferujemy atrapę kamery CCTV oraz tabliczkę informującą o monitoringu, co skutecznie odstrasza osoby postronne i minimalizuje ryzyko niepożądanych zdarzeń na działce.
- Serwis posprzedażowy - Szybka reakcja, gdy inwestor potrzebuje pomocy po odbiorze budynku.
- Stylowe okiennice w standardzie - Dodają charakteru budynkowi, poprawiają izolację i zwiększają jego bezpieczeństwo.
- Malowanie elewacji w wybranym kolorze - Pełna personalizacja wyglądu budynku zgodnie z preferencjami inwestora.
- Gwarancja najkorzystniejszej oferty - Masz tańszą ofertę od konkurencji? Prześlij ją, a my przebijemy cenę lub zaproponujemy wyższy standard w tej samej kwocie.
Cena 92 400,00 zł obejmuje
Cena obejmuje
- Stan surowy otwarty
- Ściany zewnętrzne prefabrykowane - Wykończone od zewnątrz deską elewacyjną, a wewnątrz bez wykończenia.
- Ściany działowe prefabrykowane - Jednostronnie wykończone boazerią.
- Konstrukcja dachowa - Wykonanie kompletnej konstrukcji dachowej wraz z pełnym deskowaniem i pokryciem gontem bitumicznym marki IKO.
- Antresola - Podłoga na antresoli wykończona deską 2 cm.
Cena nie obejmuje
- Podłogi
- Stolarki okiennej
- Drzwi zewnętrznych
- Drzwi wewnętrznych
- Malowania i impregnacji
Po stronie inwestora pozostaje
- Przygotowanie fundamentu przed montażem
- Izolacja przeciwwilgociowa na całej powierzchni fundamentu
- Doprowadzenie przyłączy zewnętrznych - Prąd, woda, kanalizacja.
- Montaż okien i drzwi
- Wykonanie podłogi
Inne rozmiary
- Istnieje możliwość przygotowania wyceny na domek w indywidualnie wybranym rozmiarze
Specyfikacja techniczna
Powierzchnia domku | 35 m² |
poddasze | Tak |
Powierzchnia tarasu | 14m2 |
Ścianka kolankowa | 110cm |
Ilość sypialni | 3 |
Ilość łazienek | 1 |
Dodatkowe opcje i możliwości
Wzorniki kolorów i materiałów

Wiśnia japońska
Drewnochron Impregnat Extra

Tik
Drewnochron Impregnat Extra

Palisander średni
Drewnochron Impregnat Extra

Orzech ciemny
Drewnochron Impregnat Extra

Dąb
Drewnochron Impregnat Extra

Cedr
Drewnochron Impregnat Extra
Opcje produktu
Transport wyceniany indywidualnie 6zl/km
Montaż
Wykonanie płyty fundamentowej
Przedłużenie gwarancji do 36 miesięcy
o szczegóły pytaj handlowców
Przedłużenie gwarancji do 48 miesięcy
o szczegóły pytaj handlowców
15-letnia gwarancja na konstrukcję
Gwarancja zostanie potwierdzona po otrzymaniu przez nas zdjęć wykończonego i urządzonego wnętrza. Czas na przesłanie zdjęć to maksymalnie 4 lata od montażu domku.
Drewnochron - Kolory - Standard
Malowanie lakierobejcą (paleta premium w sekcji "wzorniki")
Pokrycia dachu STANDARD - Gont prostokąt
Pokrycia dachu STANDARD - Gont Karpiówka
Obróbki blacharskie dachu(opierzenie - dotyczy gontu Standard)
Pokrycie dachu gontem premium + obróbki blacharskie w cenie (paleta premium w sekcji "wzorniki")
Pokrycie dachu blachodachówką falistą + obróbki blacharskie w cenie
Pokrycie dachu blachodachówką Janosik z posypką + obróbki blacharskie
Drzwi drewniane - Takie są w cenie domku
Okno drewniane - Takie są w cenie domku
Okna PCV kolor BIAŁY - BIAŁY
Okna PCV kolor KOLOR - KOLOR
Rynny wraz z rurami spustowymi (brązowe)
Drzwi zewnętrzne ocieplane (brązowe)
Drzwi stalowe - kolor inny
Podłoga
Okiennice
Zawiasy ozdobne na okiennicach - czarne
Drzwi wewnętrzne - drewniane
Obróbka blacharska fundamentu - okapniki
Skontaktuj się z nami w sprawie opcji
Nasze produkty można dostosować do indywidualnych potrzeb. Skontaktuj się z naszymi doradcami, aby omówić dostępne opcje i uzyskać wycenę.
Realizacje tego produktu
Masz pytania? Skontaktuj się z nami!
Podobne produkty

Domek Janusz v2 - 7m x 5m SSZ

Domek Czarek SSZ 6m x 5,8m (SSZ)

Domek Janusz SSZ- 7m x 5m (SSZ)

Domek Gustaw 5x7m (SSZ)
Co mówią o nas klienci?
Blog
Poznaj najważniejsze informacje o drewnie, pielęgnacji i bezpieczeństwie naszych drewnianych domków od Drewnolandi



