




































Wszystkie zdjęcia i filmy (37)
Domek Adam IV - 36 m² (WT2021)
Warianty produktu
Dodatkowe opcje
Opis produktu
Domek całoroczny Adam IV w standardzie WT2021 to nowoczesna konstrukcja oparta na sprawdzonej technologii szkieletowej kanadyjskiej, cenionej za trwałość, energooszczędność oraz ekologiczny charakter. Dzięki zastosowaniu wysokiej jakości materiałów oraz odpowiednich rozwiązań izolacyjnych budynek zapewnia komfort cieplny przez cały rok i niskie koszty eksploatacji.
W wersji całorocznej domek wyposażony jest w skuteczną izolację termiczną z wełny mineralnej, estetyczne wykończenie wnętrza oraz komplet podstawowych instalacji, co pozwala na szybkie i wygodne użytkowanie. Konstrukcja została zaprojektowana z myślą o łatwym i efektywnym ogrzewaniu – szczególnie dobrze sprawdzają się nowoczesne systemy, takie jak klimatyzacja z funkcją grzania, umożliwiająca optymalizację zużycia energii.
Dodatkowym atutem jest możliwość realizacji inwestycji w uproszczonej procedurze na zgłoszenie, co znacząco skraca czas budowy i ogranicza formalności.
Unikalne cechy
- Możliwość pełnej personalizacji budynku - Jako producent możemy zmienić wymiary, kąt dachu, układ wnętrz, rodzaj stolarki, sposób ocieplenia oraz zakres instalacji elektrycznej, hydraulicznej i ogrzewania.
- Transport i montaż na terenie całej Polski W CENIE - Realizujemy dostawę i kompletny montaż budynku w każdym regionie kraju.
- Gwarancja niezmiennej ceny po podpisaniu umowy - Pełna ochrona przed podwyżkami materiałów i kosztów robocizny.
- Pisemna, aż 15-letnia gwarancja na konstrukcję budynku - Jedna z najdłuższych na rynku, potwierdzona dokumentem odbiorczym.
- Gwarancja terminu rozpoczęcia montażu - Wpisana do umowy, co eliminuje opóźnienia typowe dla konkurencyjnych firm.
- Dedykowany doradca techniczny dla każdego inwestora - Osobiste wsparcie od pierwszej rozmowy do zakończenia budowy.
- Prewencyjny system zabezpieczenia placu budowy - W standardzie oferujemy atrapę kamery CCTV oraz tabliczkę informującą o monitoringu, co skutecznie odstrasza osoby postronne i minimalizuje ryzyko niepożądanych zdarzeń na działce.
- Serwis posprzedażowy - Szybka reakcja, gdy inwestor potrzebuje pomocy po odbiorze budynku.
- Malowanie elewacji w wybranym kolorze - Pełna personalizacja wyglądu budynku zgodnie z preferencjami inwestora.
- Kompletna instalacja grzewcza w cenie - Nowoczesna klimatyzacja z funkcją grzania, energooszczędne źródło ciepła dostosowane do standardu WT2021.
- Gwarancja najkorzystniejszej oferty - Masz tańszą ofertę od konkurencji? Prześlij ją, a my przebijemy cenę lub zaproponujemy wyższy standard w tej samej kwocie.
Podana cena jest kwotą brutto i uwzględnia 8% stawkę VAT. Obowiązuje ona wyłącznie w przypadku budowy domu na cele mieszkaniowe na działce budowlanej, zgodnie z ustawą o podatku od towarów i usług, art. 41 ust. 12
Cena 159 900,00 zł obejmuje
- Transport i montaż na terenie całego kraju GRATIS
- Dostawa oraz montaż prefabrykowanych modułów domku - Bezpośrednio na działce inwestora.
- Ściany zewnętrzne prefabrykowane - Wykończone od zewnątrz deską elewacyjną, ocieplenie, wewnątrz wykończenia boazerią.
- Montaż zewnętrznej stolarki okiennej PCV i drzwiowej
- Ściany działowe prefabrykowane - Odizolowane akustycznie wełną i dwustronnie wykończone boazerią.
- Podłoga w standardzie deweloperskim (technicznym) - Pomalowana na ten sam kolor co elewacja.
- Konstrukcja dachowa ocieplona wełną - Wykonanie kompletnej konstrukcji dachowej wraz z pełnym deskowaniem i pokryciem gontem bitumicznym marki IKO.
- Rynny wraz z rurami spustowymi - (brązowe)
- Izolacja termiczna (ocieplenie) podłogi - 10 cm
- Izolacja termiczna (ocieplenie) ścian zewnętrznych - 20 cm
- Izolacja akustyczna ścian wewnętrznych - 10 cm
- Izolacja termiczna (ocieplenie) dachu - 25 cm
- Instalacja elektryczna - Kompletna skrzynka rozdzielcza z bezpiecznikami, białe gniazdka i przełączniki, 20 punktów elektrycznych.
- Instalacja hydrauliczna - Kompletne rozprowadzenie instalacji, bojler Ariston Velis Evo 80 oraz profesjonalny pomiar ciśnieniowy całego układu.
- Schodki młynarskie
- Dwukrotne malowanie preparatem marki Drewnochron
- Okiennice W CENIE - nie dotyczy okien fix oraz okien tarasowych
- Prewencyjny system zabezpieczenia - Atrapę kamery CCTV oraz tabliczkę ostrzegawczą „obiekt monitorowany”.
Po stronie inwestora pozostaje
- Adaptacja projektu do warunków lokalnych
- Uzyskanie pozwolenia na budowę lub zgłoszenia
- Przygotowanie fundamentu - Lub zlecenie jego wykonania naszej firmie.
- Wykonanie białego montażu hydraulicznego
- Doprowadzenie przyłączy zewnętrznych - Prąd, woda, kanalizacja.
Inne rozmiary
- Istnieje możliwość przygotowania wyceny na domek w indywidualnie wybranym rozmiarze
Specyfikacja techniczna
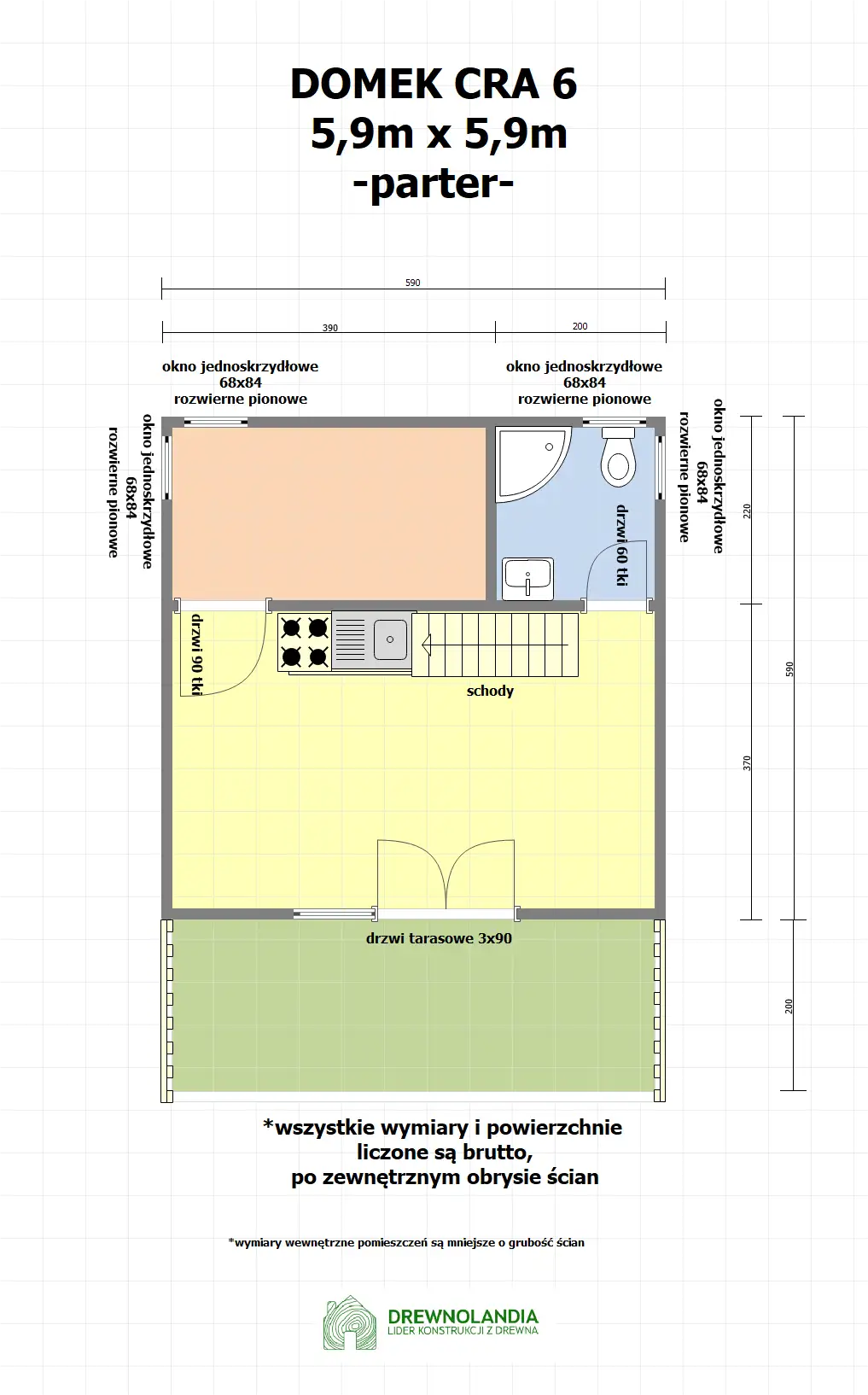
Powierzchnia domku | 35 m² |
Powierzchnia tarasu | 12m2 |
antresola | Tak |
Ilość sypialni | 2 |
Ilość łazienek | 1 |
Dodatkowe informacje
(bez linii zabudowy i sąsiednich budynków)
Dodatkowe opcje i możliwości
Wzorniki kolorów i materiałów

Wiśnia japońska
Drewnochron Impregnat Extra

Tik
Drewnochron Impregnat Extra

Palisander średni
Drewnochron Impregnat Extra

Orzech ciemny
Drewnochron Impregnat Extra

Dąb
Drewnochron Impregnat Extra

Cedr
Drewnochron Impregnat Extra
Opcje produktu
Transport GRATIS na terenie kraju
Montaż
Wykonanie płyty fundamentowej
Cena fundamentów/płyty wynosi 400–700 zł/m² i zależy od lokalizacji, grubości, warunków gruntu i specyfikacji terenu.
Przedłużenie gwarancji do 36 miesięcy
o szczegóły pytaj handlowców
Przedłużenie gwarancji do 48 miesięcy
o szczegóły pytaj handlowców
15-letnia gwarancja na konstrukcję
Gwarancja zostanie potwierdzona po otrzymaniu przez nas zdjęć wykończonego i urządzonego wnętrza. Czas na przesłanie zdjęć to maksymalnie 4 lata od montażu domku.
Rozszerzenie izolacji podłogi do 15 cm
Rozszerzenie izolacji ścian do 25 cm
Rozszerzenie izolacji dachu do 30 cm
Zabudowa pozostałej części poddasza
Dodatkowa ściana działowa na poddaszu(po szerokości poddasza)
Ścianka kolankowa 0,5m
Ocieplenie ścianki kolankowej 0,5m - wełna 20 cm oraz wykończenie wewnątrz boazerią
Ocieplenie ścianki kolankowej 0,5m - wełna 25 cm oraz wykończenie wewnątrz boazerią
Ścianka kolankowa 0,7m
Ocieplenie ścianki kolankowej 0,7m - wełna 20 cm oraz wykończenie wewnątrz boazerią
Ocieplenie ścianki kolankowej 0,7m - wełna 25 cm oraz wykończenie wewnątrz boazerią
Ścianka kolankowa 1m
Ocieplenie ścianki kolankowej 1m - wełna 20 cm oraz wykończenie wewnątrz boazerią
Ocieplenie ścianki kolankowej 1m - wełna 25 cm oraz wykończenie wewnątrz boazerią
Rozbudowa instalacji elektrycznej o dodatkowe 5 punktów
Rozbudowa instalacji elektrycznej o dodatkowe 10 punktów
Rozbudowa instalacji elektrycznej o dodatkowe 15 punktów
Rozbudowa instalacji elektrycznej o dodatkowe 20 punktów
Rozbudowa instalacji elektrycznej o dodatkowe 25 punktów
Rozbudowa instalacji elektrycznej o dodatkowe 30punktów
Rozbudowa instalacji elektrycznej o dodatkowe 35 punktów
Rozbudowa instalacji elektrycznej o dodatkowe 40 punktów
Dodatkowy Punkt Hydrauliczny
Grzejnik "drabinka" do łazienki
Instalacja Klimatyzacji z funkcją ogrzewania
Instalacja grzewcza – grzejniki elektryczne
Ogrzewanie podłogowe foliami grzewczymi.
Komin modułowy śr. 290mm
Podwyższenie o 1m komina śr. 290mm
Piecyk wolnostojący typu koza K5
Piecyk wolnostojący typu koza K8 z turbofanem
Piecyk wolnostojący kaflowy WK440
Magazynek na narzędzia dostawiany do ściany domku w rozmiarze 3m x 1m
Magazynek na narzędzia dostawiany do ściany domku w rozmiarze 3m x 1,5m
Magazynek dostawiany do ściany domku w rozmiarze 3m x 1m, podzielony na schowek oraz WC po 1,5m x 1m każdy
Drewutnia dostawiana do ściany domku w rozmiarze 3x1m
Rynna - dach jednospadowy szer. 3m
WC wolnostojące - klasyczna Sławojka
Doniczka pod okno na kwiaty
Donica ozdobna 50x50cm
Donica ozdobna 95xx50cm
Drewnochron - Kolory - Standard
Dodatkowe malowanie (kolejna warstwa z wzornika standard)
Malowanie lakierobejcą (paleta premium w sekcji "wzorniki")
Pokrycia dachu STANDARD - Gont prostokąt
Pokrycia dachu STANDARD - Gont Karpiówka
Obróbki blacharskie dachu(opierzenie - dotyczy gontu Standard)
Pokrycie dachu gontem premium + obróbki blacharskie w cenie (paleta premium w sekcji "wzorniki")
Pokrycie dachu blachodachówką falistą + obróbki blacharskie w cenie
Pokrycie dachu blachodachówką Janosik z posypką + obróbki blacharskie
Okna PCV kolor BIAŁY - BIAŁY
Okna PCV kolor KOLOR - KOLOR
Rynny wraz z rurami spustowymi (brązowe)
Drzwi zewnętrzne ocieplane (brązowe)
Drzwi stalowe - kolor inny
Podłoga tarasu pokryta deską ryflowana 27mm
Dodatkowe dwuskrzydłowe okno PCV (obustronnie białe)
Dodatkowe jednoskrzydłowe okno PCV (obustronnie białe)
Okno dachowe
Zawiasy ozdobne na okiennicach - czarne
Obróbka blacharska fundamentu - okapniki
Skontaktuj się z nami w sprawie opcji
Nasze produkty można dostosować do indywidualnych potrzeb. Skontaktuj się z naszymi doradcami, aby omówić dostępne opcje i uzyskać wycenę.
Realizacje tego produktu

Domek Adam IV CRA — Dąb, czerwiec 2023
Kolor elewacji: Dąb Drewnochron Impregnat Extra
Krycie dachu: Gont czarny standard
Link do strony ofertowej oryginalnej wersji budynku TUTAJ

Domek Adam IV CRA — realizacja, październik 2022
Elewacja: Dąb Drewnochron Impregnat Extra
Pokrycie dachu: Gont czarny standard
Link do strony ofertowej oryginalnej wersji budynku TUTAJ

Domek Adam IV CRA — Dąb, czerwiec 2022
Kolor elewacji: Dąb Drewnochron Impregnat Extra
Pokrycie dachu: Gont zielony
Link do strony ofertowej oryginalnej wersji budynku TUTAJ

Domek Adam IV SSZ 5,9m x 5,9m — Dąb, luty 2022
Kolor elewacji: Dąb Drewnochron Impregnat Extra
Pokrycie dachu: Gont grafitowy standard
Link do strony ofertowej oryginalnej wersji budynku TUTAJ

Domek Adam IV SSZ 5,9m x 5,9m — Da, grudzień 2020
Inwestor: Pan Paweł z miejscowości Przystajń
Kolor domku: Dąb Drewnochron Impregnat Extra
Kolor gontu: Grafitowy standard
Link do strony ofertowej oryginalnej wersji budynku TUTAJ

Domek Adam IV SSZ 5,9m x 5,9m — Pani Katarzyna, Rusinowa, sierpień 2020
Inwestor: Pani Katarzyna z Rusinowa
Kolor domku: Biały Drewnochron Lakierobejca 2w1 + Venge Lakierobejca Premium
Kolor dachu: Blachodachówka czarna
Link do strony ofertowej oryginalnej wersji budynku TUTAJ

Domek Adam IV SSZ 5,9m x 5,9m — Pan Cezary, KusiętaLink, kwiecień 2020
Inwestor: Pan Cezary z miejscowości Kusięta
Link do strony ofertowej oryginalnej wersji budynku TUTAJ

Domek Adam IV SSZ 5,9m x 5,9m — Pan Cezary, Kusięta, kwiecień 2020
Inwestor: Pan Cezary z miejscowości Kusięta
Kolor domku: Biały Premium + Palisander Standard
Kolor gontu: Czarny Standard
Link do oryginalnej wersji budynku TUTAJ

Domek Adam IV SSZ 5,9m x 5,9m — Pan Michał, Warszawy, grudzień 2019
Inwestor: Pan Michał z Warszawy
Kolor domku: Szary Standard + Biały Premium
Kolor gontu: Grafit Standard
Link do oryginalnej wersji budynku TUTAJ
Masz pytania? Skontaktuj się z nami!
Podobne produkty

Domek Adam III 7 × 5 m (WT2021)

Dom Grzegorz – 48 m² (WT2021)

Domek Olaf - 7x5 (WT2021)

Domek Miłosz - 54 m² (WT2021)
Co mówią o nas klienci?
Blog
Poznaj najważniejsze informacje o drewnie, pielęgnacji i bezpieczeństwie naszych drewnianych domków od Drewnolandi



