












Wszystkie zdjęcia i filmy (13)
Domek Sebastian – 48 m² (WT2021)
Warianty produktu
Dodatkowe opcje
Opis produktu
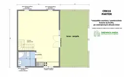
Jeśli szukasz przestronnego domku rekreacyjnego zaprojektowanego z myślą o parach lub niedużej rodzinie – całoroczny domek wypoczynkowy CRK16 jest właśnie dla Ciebie. Domek został opracowany w standardzie wielosezonowym, posiada więc ocieplenie podłogi, ścian i dachu, dwuszybowe okna PCV, stalowe drzwi ocieplane, rynny, instalacje hydrauliczną oraz elektryczną. Dzięki temu można użytkować go w komfortowy sposób niezależnie od pory roku, izolacja działa bowiem zarówno latem, chroniąc od upałów, jak i zimą, spowalniając proces studzenia wytworzonego wewnątrz ciepła. Spośród innych konstrukcji Drewnolandii, model CRK16 wyróżnia się przestronnym tarasem o łącznej powierzchni 32 metrów kwadratowych, wykończony gustowną pergolą. Konstrukcja domku została wykonana w technologii szkieletowej, z suszonego komorowo drewna konstrukcyjnego klasy C24. Dzięki temu całość pod względem solidności w niczym nie odbiega od rozwiązań murowanych. Wnętrze budynku zostało podzielone na otwartą przestrzeń na parterze z wydzieloną łazienką oraz miejscem na aneks kuchenny oraz na przestronną antresolę wyposażoną dodatkowo w ściankę kolankową o wysokości 70 cm, co zapewnia dodatkową przestrzeń nad głową a także lepszą możliwość zagospodarowania tej przestrzeni. Kompleksowa oferta producenta obejmuje także transport na terenie całego kraju oraz montaż.
Unikalne cechy
- Możliwość pełnej personalizacji budynku - Jako producent możemy zmienić wymiary, kąt dachu, układ wnętrz, rodzaj stolarki, sposób ocieplenia oraz zakres instalacji elektrycznej, hydraulicznej i ogrzewania.
- Transport i montaż na terenie całej Polski W CENIE - Realizujemy dostawę i kompletny montaż budynku w każdym regionie kraju.
- Gwarancja niezmiennej ceny po podpisaniu umowy - Pełna ochrona przed podwyżkami materiałów i kosztów robocizny.
- Pisemna, aż 15-letnia gwarancja na konstrukcję budynku - Jedna z najdłuższych na rynku, potwierdzona dokumentem odbiorczym.
- Gwarancja terminu rozpoczęcia montażu - Wpisana do umowy, co eliminuje opóźnienia typowe dla konkurencyjnych firm.
- Dedykowany doradca techniczny dla każdego inwestora - Osobiste wsparcie od pierwszej rozmowy do zakończenia budowy.
- Prewencyjny system zabezpieczenia placu budowy - W standardzie oferujemy atrapę kamery CCTV oraz tabliczkę informującą o monitoringu, co skutecznie odstrasza osoby postronne i minimalizuje ryzyko niepożądanych zdarzeń na działce.
- Serwis posprzedażowy - Szybka reakcja, gdy inwestor potrzebuje pomocy po odbiorze budynku.
- Malowanie elewacji w wybranym kolorze - Pełna personalizacja wyglądu budynku zgodnie z preferencjami inwestora.
- Kompletna instalacja grzewcza w cenie - Nowoczesna klimatyzacja z funkcją grzania, energooszczędne źródło ciepła dostosowane do standardu WT2021.
- Gwarancja najkorzystniejszej oferty - Masz tańszą ofertę od konkurencji? Prześlij ją, a my przebijemy cenę lub zaproponujemy wyższy standard w tej samej kwocie.
Podana cena jest kwotą brutto i uwzględnia 8% stawkę VAT. Obowiązuje ona wyłącznie w przypadku budowy domu na cele mieszkaniowe na działce budowlanej, zgodnie z ustawą o podatku od towarów i usług, art. 41 ust. 12
Cena 198 900,00 zł obejmuje
Cena obejmuje
- Transport i montaż na terenie całego kraju GRATIS
- Dostawa oraz montaż prefabrykowanych modułów domku - Bezpośrednio na działce inwestora.
- Ściany zewnętrzne prefabrykowane - Wykończone od zewnątrz deską elewacyjną, ocieplenie, wewnątrz wykończenia boazerią.
- Montaż zewnętrznej stolarki okiennej PCV i drzwiowej
- Ściany działowe prefabrykowane - Odizolowane akustycznie wełną i dwustronnie wykończone boazerią.
- Podłoga w standardzie deweloperskim (technicznym) - Pomalowana na ten sam kolor co elewacja.
- Konstrukcja dachowa ocieplona wełną - Wykonanie kompletnej konstrukcji dachowej wraz z pełnym deskowaniem i pokryciem gontem bitumicznym marki IKO.
- Rynny wraz z rurami spustowymi - (brązowe)
- Izolacja termiczna (ocieplenie) podłogi - 10 cm
- Izolacja termiczna (ocieplenie) ścian zewnętrznych - 20 cm
- Izolacja akustyczna ścian wewnętrznych - 10 cm
- Izolacja termiczna (ocieplenie) dachu - 25 cm
- Instalacja elektryczna - Kompletna skrzynka rozdzielcza z bezpiecznikami, białe gniazdka i przełączniki, 20 punktów elektrycznych.
- Instalacja hydrauliczna - Kompletne rozprowadzenie instalacji, bojler Ariston Velis Evo 80 oraz profesjonalny pomiar ciśnieniowy całego układu.
- Schodki młynarskie
- Dwukrotne malowanie preparatem marki Drewnochron
- Okiennice W CENIE
- Prewencyjny system zabezpieczenia - Atrapę kamery CCTV oraz tabliczkę ostrzegawczą „obiekt monitorowany”.
Po stronie inwestora pozostaje
- Adaptacja projektu do warunków lokalnych
- Uzyskanie pozwolenia na budowę lub zgłoszenia
- Przygotowanie fundamentu - Lub zlecenie jego wykonania naszej firmie.
- Szpachlowanie i malowanie sufitów oraz ścian
- Wykonanie białego montażu hydraulicznego
- Doprowadzenie przyłączy zewnętrznych - Prąd, woda, kanalizacja.
- Wykończenie pod klucz - M.in. montaż podłóg, drzwi wewnętrznych, zabudowy meblowej i płytek.
Specyfikacja techniczna
Powierzchnia domku | 48 m² |
antresola | Tak |
Powierzchnia tarasu | 32m2 |
Ścianka kolankowa | 70cm |
Ilość łazienek | 1 |
Ilość sypialni | 1 |
Dodatkowe opcje i możliwości
Wzorniki kolorów i materiałów

Wiśnia japońska
Drewnochron Impregnat Extra

Tik
Drewnochron Impregnat Extra

Palisander średni
Drewnochron Impregnat Extra

Orzech ciemny
Drewnochron Impregnat Extra

Dąb
Drewnochron Impregnat Extra

Cedr
Drewnochron Impregnat Extra
Opcje produktu
Transport GRATIS na terenie kraju
Montaż
Wykonanie płyty fundamentowej
Przedłużenie gwarancji do 36 miesięcy
o szczegóły pytaj handlowców
Przedłużenie gwarancji do 48 miesięcy
o szczegóły pytaj handlowców
15-letnia gwarancja na konstrukcję
Gwarancja zostanie potwierdzona po otrzymaniu przez nas zdjęć wykończonego i urządzonego wnętrza. Czas na przesłanie zdjęć to maksymalnie 4 lata od montażu domku.
Rozszerzenie izolacji podłogi do 15 cm
Rozszerzenie izolacji ścian do 25 cm
Rozszerzenie izolacji dachu do 30 cm
Zabudowa pozostałej części poddasza
Dodatkowa ściana działowa na poddaszu(po szerokości poddasza)
Ścianka kolankowa 0,5m
Ocieplenie ścianki kolankowej 0,5m - wełna 20 cm oraz wykończenie wewnątrz boazerią
Ocieplenie ścianki kolankowej 0,5m - wełna 25 cm oraz wykończenie wewnątrz boazerią
Ścianka kolankowa 0,7m
Ocieplenie ścianki kolankowej 0,7m - wełna 20 cm oraz wykończenie wewnątrz boazerią
Ocieplenie ścianki kolankowej 0,7m - wełna 25 cm oraz wykończenie wewnątrz boazerią
Ścianka kolankowa 1m
Ocieplenie ścianki kolankowej 1m - wełna 20 cm oraz wykończenie wewnątrz boazerią
Ocieplenie ścianki kolankowej 1m - wełna 25 cm oraz wykończenie wewnątrz boazerią
Rozbudowa instalacji elektrycznej o dodatkowe 5 punktów
Rozbudowa instalacji elektrycznej o dodatkowe 10 punktów
Rozbudowa instalacji elektrycznej o dodatkowe 15 punktów
Rozbudowa instalacji elektrycznej o dodatkowe 20 punktów
Rozbudowa instalacji elektrycznej o dodatkowe 25 punktów
Rozbudowa instalacji elektrycznej o dodatkowe 30punktów
Rozbudowa instalacji elektrycznej o dodatkowe 35 punktów
Rozbudowa instalacji elektrycznej o dodatkowe 40 punktów
Dodatkowy Punkt Hydrauliczny
Grzejnik "drabinka" do łazienki
Instalacja Klimatyzacji z funkcją ogrzewania
Instalacja grzewcza – grzejniki elektryczne
Ogrzewanie podłogowe foliami grzewczymi.
Komin modułowy śr. 290mm
Podwyższenie o 1m komina śr. 290mm
Piecyk wolnostojący typu koza K5
Piecyk wolnostojący typu koza K8 z turbofanem
Piecyk wolnostojący kaflowy WK440
Magazynek na narzędzia dostawiany do ściany domku w rozmiarze 3m x 1m
Magazynek na narzędzia dostawiany do ściany domku w rozmiarze 3m x 1,5m
Magazynek dostawiany do ściany domku w rozmiarze 3m x 1m, podzielony na schowek oraz WC po 1,5m x 1m każdy
Drewutnia dostawiana do ściany domku w rozmiarze 3x1m
Rynna - dach jednospadowy szer. 3m
WC wolnostojące - klasyczna Sławojka
Doniczka pod okno na kwiaty
Donica ozdobna 50x50cm
Donica ozdobna 95xx50cm
Drewnochron - Kolory - Standard
Dodatkowe malowanie (kolejna warstwa z wzornika standard)
Malowanie lakierobejcą (paleta premium w sekcji "wzorniki")
Pokrycia dachu STANDARD - Gont prostokąt
Pokrycia dachu STANDARD - Gont Karpiówka
Obróbki blacharskie dachu(opierzenie - dotyczy gontu Standard)
Pokrycie dachu gontem premium + obróbki blacharskie w cenie (paleta premium w sekcji "wzorniki")
Pokrycie dachu blachodachówką falistą + obróbki blacharskie w cenie
Pokrycie dachu blachodachówką Janosik z posypką + obróbki blacharskie
Okna PCV kolor BIAŁY - BIAŁY
Okna PCV kolor KOLOR - KOLOR
Rynny wraz z rurami spustowymi (brązowe)
Drzwi zewnętrzne ocieplane (brązowe)
Drzwi stalowe - kolor inny
Podłoga tarasu pokryta deską ryflowana 27mm
Dodatkowe dwuskrzydłowe okno PCV (obustronnie białe)
Dodatkowe jednoskrzydłowe okno PCV (obustronnie białe)
Okno dachowe
Zawiasy ozdobne na okiennicach - czarne
Obróbka blacharska fundamentu - okapniki
Skontaktuj się z nami w sprawie opcji
Nasze produkty można dostosować do indywidualnych potrzeb. Skontaktuj się z naszymi doradcami, aby omówić dostępne opcje i uzyskać wycenę.
Realizacje tego produktu
Masz pytania? Skontaktuj się z nami!
Co mówią o nas klienci?
Blog
Poznaj najważniejsze informacje o drewnie, pielęgnacji i bezpieczeństwie naszych drewnianych domków od Drewnolandi



