












Wszystkie zdjęcia i filmy (13)
Domek Sebastian – 48 m² (SSZ)
Warianty produktu
Dodatkowe opcje
Opis produktu
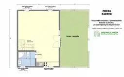
Jeśli szukasz przestronnego domku rekreacyjnego zaprojektowanego z myślą o parach lub niedużej rodzinie – całoroczny domek wypoczynkowy CRK16 jest właśnie dla Ciebie. Domek został opracowany w standardzie wielosezonowym, posiada więc ocieplenie podłogi, ścian i dachu, dwuszybowe okna PCV, stalowe drzwi ocieplane, rynny, instalacje hydrauliczną oraz elektryczną. Dzięki temu można użytkować go w komfortowy sposób niezależnie od pory roku, izolacja działa bowiem zarówno latem, chroniąc od upałów, jak i zimą, spowalniając proces studzenia wytworzonego wewnątrz ciepła. Spośród innych konstrukcji Drewnolandii, model CRK16 wyróżnia się przestronnym tarasem o łącznej powierzchni 32 metrów kwadratowych, wykończony gustowną pergolą. Konstrukcja domku została wykonana w technologii szkieletowej, z suszonego komorowo drewna konstrukcyjnego klasy C24. Dzięki temu całość pod względem solidności w niczym nie odbiega od rozwiązań murowanych. Wnętrze budynku zostało podzielone na otwartą przestrzeń na parterze z wydzieloną łazienką oraz miejscem na aneks kuchenny oraz na przestronną antresolę wyposażoną dodatkowo w ściankę kolankową o wysokości 70 cm, co zapewnia dodatkową przestrzeń nad głową a także lepszą możliwość zagospodarowania tej przestrzeni. Kompleksowa oferta producenta obejmuje także transport na terenie całego kraju oraz montaż.
Unikalne cechy
- Możliwość pełnej personalizacji budynku - Jako producent możemy zmienić wymiary, kąt dachu, układ wnętrz, rodzaj stolarki, sposób ocieplenia oraz zakres instalacji elektrycznej, hydraulicznej i ogrzewania, przygotowując domek również w standardzie całorocznym lub mieszkalnym WT2021.
- Transport i montaż na terenie całej Polski - Realizujemy dostawę i kompletny montaż budynku w każdym regionie kraju (wycena indywidualna).
- Gwarancja niezmiennej ceny po podpisaniu umowy - Pełna ochrona przed podwyżkami materiałów i kosztów robocizny.
- Pisemna, aż 15-letnia gwarancja na konstrukcję budynku - Jedna z najdłuższych na rynku, potwierdzona dokumentem odbiorczym.
- Gwarancja terminu rozpoczęcia montażu - Wpisana do umowy, co eliminuje opóźnienia typowe dla konkurencyjnych firm.
- Dedykowany doradca techniczny dla każdego inwestora - Osobiste wsparcie od pierwszej rozmowy do zakończenia budowy.
- Prewencyjny system zabezpieczenia placu budowy - W standardzie oferujemy atrapę kamery CCTV oraz tabliczkę informującą o monitoringu, co skutecznie odstrasza osoby postronne i minimalizuje ryzyko niepożądanych zdarzeń na działce.
- Serwis posprzedażowy - Szybka reakcja, gdy inwestor potrzebuje pomocy po odbiorze budynku.
- Stylowe okiennice w standardzie - Dodają charakteru budynkowi, poprawiają izolację i zwiększają jego bezpieczeństwo.
- Malowanie elewacji w wybranym kolorze - Pełna personalizacja wyglądu budynku zgodnie z preferencjami inwestora.
- Gwarancja najkorzystniejszej oferty - Masz tańszą ofertę od konkurencji? Prześlij ją, a my przebijemy cenę lub zaproponujemy wyższy standard w tej samej kwocie.
Cena 125 000,00 zł obejmuje
Cena obejmuje
- Ściany zewnętrzne prefabrykowane - Wykończone od zewnątrz deską elewacyjną, a wewnątrz bez wykończenia.
- Montaż zewnętrznej stolarki okiennej i drzwiowej
- Ściany działowe prefabrykowane - Jednostronnie wykończone boazerią.
- Podłoga w standardzie deweloperskim (technicznym) - Pomalowana na ten sam kolor co elewacja.
- Konstrukcja dachowa - Wykonanie kompletnej konstrukcji dachowej wraz z pełnym deskowaniem i pokryciem gontem bitumicznym marki IKO.
- Schodki młynarskie
- Dwukrotne malowanie preparatem marki Drewnochron
- Okiennice
Po stronie inwestora pozostaje
- Przygotowanie fundamentu przed montażem
- Izolacja przeciwwilgociowa na całej powierzchni fundamentu
- Doprowadzenie przyłączy zewnętrznych - Prąd, woda, kanalizacja.
Specyfikacja techniczna
Powierzchnia domku | 48 m² |
antresola | Tak |
Powierzchnia tarasu | 32m2 |
Ścianka kolankowa | 70cm |
Ilość łazienek | 1 |
Ilość sypialni | 1 |
Dodatkowe opcje i możliwości
Wzorniki kolorów i materiałów

Wiśnia japońska
Drewnochron Impregnat Extra

Tik
Drewnochron Impregnat Extra

Palisander średni
Drewnochron Impregnat Extra

Orzech ciemny
Drewnochron Impregnat Extra

Dąb
Drewnochron Impregnat Extra

Cedr
Drewnochron Impregnat Extra
Opcje produktu
Transport wyceniany indywidualnie 6zl/km
Montaż
Wykonanie płyty fundamentowej
Przedłużenie gwarancji do 36 miesięcy
o szczegóły pytaj handlowców
Przedłużenie gwarancji do 48 miesięcy
o szczegóły pytaj handlowców
15-letnia gwarancja na konstrukcję
Gwarancja zostanie potwierdzona po otrzymaniu przez nas zdjęć wykończonego i urządzonego wnętrza. Czas na przesłanie zdjęć to maksymalnie 4 lata od montażu domku.
Ocieplenie podłogi - wełna 10cm
Ocieplenie podłogi - wełna 15cm
Wykończenie ścian wewnątrz boazerią bez ocieplenia
Ocieplenie ścian - wełna 10cm oraz wykończenia wewnątrz boazerią
Ocieplenie ścian - wełna 15cm oraz wykończenia wewnątrz boazerią
Ocieplenie ścian - wełna 20cm oraz wykończenia wewnątrz boazerią
Ocieplenie dachu - wełna 10cm oraz wykończenia wewnątrz boazerią
Ocieplenie dachu - wełna 15cm oraz wykończenia wewnątrz boazerią
Ocieplenie dachu - wełna 20cm oraz wykończenia wewnątrz boazerią
Ocieplenie dachu - wełna 25cm oraz wykończenia wewnątrz boazerią
Zabudowa pozostałej części poddasza
Dodatkowa ściana działowa na poddaszu(po szerokości poddasza)
Instalacja elektryczna wraz z gniazdkami - 20 punktów elektrycznych
Instalacja elektryczna wraz z gniazdkami - 25 punktów elektrycznych
Instalacja elektryczna wraz z gniazdkami - 30 punktów elektrycznych
Instalacja elektryczna wraz z gniazdkami - 35 punktów elektrycznych
Instalacja elektryczna wraz z gniazdkami - 40 punktów elektrycznych
Instalacja hydrauliczna wewnętrzna wraz z bojlerem
Grzejnik "drabinka" do łazienki
Instalacja Klimatyzacji z funkcją ogrzewania
Instalacja grzewcza – grzejniki elektryczne
Ogrzewanie podłogowe foliami grzewczymi.
Komin modułowy sr. 220mm
Podwyższenie o 1m komina śr. 220mm
Piecyk wolnostojący typu koza K5
Piecyk wolnostojący typu koza K8 z turbofanem
Piecyk wolnostojący kaflowy WK440
Magazynek na narzędzia dostawiany do ściany domku w rozmiarze 3m x 1m
Magazynek na narzędzia dostawiany do ściany domku w rozmiarze 3m x 1,5m
Magazynek dostawiany do ściany domku w rozmiarze 3m x 1m, podzielony na schowek oraz WC po 1,5m x 1m każdy
Drewutnia dostawiana do ściany domku w rozmiarze 3x1m
Rynna - dach jednospadowy szer. 3m
WC wolnostojące - klasyczna Sławojka
Doniczka pod okno na kwiaty
Donica ozdobna 50x50cm
Donica ozdobna 95xx50cm
Drewnochron - Kolory - Standard
Dodatkowe malowanie (kolejna warstwa z wzornika standard)
Malowanie lakierobejcą (paleta premium w sekcji "wzorniki")
Pokrycia dachu STANDARD - Gont prostokąt
Pokrycia dachu STANDARD - Gont Karpiówka
Obróbki blacharskie dachu(opierzenie - dotyczy gontu Standard)
Pokrycie dachu gontem premium + obróbki blacharskie w cenie (paleta premium w sekcji "wzorniki")
Pokrycie dachu blachodachówką falistą + obróbki blacharskie w cenie
Pokrycie dachu blachodachówką Janosik z posypką + obróbki blacharskie
Drzwi drewniane - Takie są w cenie domku
Okna PCV kolor BIAŁY - BIAŁY
Okna PCV kolor KOLOR - KOLOR
Rynny wraz z rurami spustowymi (brązowe)
Drzwi zewnętrzne ocieplane (brązowe)
Drzwi stalowe - kolor inny
Dodatkowe drzwi drewniane
Podłoga tarasu pokryta deską ryflowana 27mm
Dodatkowe dwuskrzydłowe okno PCV (obustronnie białe)
Dodatkowe jednoskrzydłowe okno PCV (obustronnie białe)
Okno dachowe
Zawiasy ozdobne na okiennicach - czarne
Obróbka blacharska fundamentu - okapniki
Skontaktuj się z nami w sprawie opcji
Nasze produkty można dostosować do indywidualnych potrzeb. Skontaktuj się z naszymi doradcami, aby omówić dostępne opcje i uzyskać wycenę.
Realizacje tego produktu
Masz pytania? Skontaktuj się z nami!
Podobne produkty
Co mówią o nas klienci?
Blog
Poznaj najważniejsze informacje o drewnie, pielęgnacji i bezpieczeństwie naszych drewnianych domków od Drewnolandi







