















Wszystkie zdjęcia (15)
Domek mieszkalny całoroczny CRP1 PLUS - WT2021 - 7x5 (35 m²)
Dodatkowe opcje
Opis produktu
CRP1 PLUS to całoroczny do mieszkalny wykonany w całości z drewna, w technologii szkieletowej kanadyjskiej, wyłącznie z litego drewna konstrukcyjnego klasy C24. Dom został opracowany w oparciu o wytyczne standardu WT2021, dzięki czemu nadaje się do zamieszkania krótko po zakończeniu procesu budowy. Dom został zaizolowany wełną o grubości 20 cm, wyposażyliśmy go także w trzyszybowe okna PCV, stalowe drzwi ocieplane, rynny, instalację elektryczną, hydrauliczną oraz grzewczą. W standardzie przewidzieliśmy także impregnację i malowanie elewacji oraz pokrycie dachu gontem bitumicznym. Całość oferty obejmuje również transport na terenie całej Polski oraz montaż przez fachową ekipę producenta, co zapewnia najwyższą jakość oraz pełna wsparcie gwarancyjne.
Unikalne cechy
- Transport i montaż na terenie całego kraju
- Komplet mediów - elektryka, hydraulika, ogrzewanie
- Izolacja termiczna (ocieplenia) całego domku, w tym ścian działowych wewnątrz
- Przygotowywany indywidualny rysunek fundamentu, podejść elektrycznych i wodnych a także odpływów kanalizacyjnych
- Prewencyjny system zabezpieczenia - atrapa kamery CCTV oraz tabliczka ostrzegawcza
- Indywidualny doradca techniczny przydzielony do każdego Inwestora
- Możliwość dopasowania domku do wymagań Inwestora
Cena 215 600,00 zł obejmuje
- Domek w stanie surowym deweloperskim, całorocznym
- Drzwi zewnętrzne, drzwi wewnętrzne, okna, okiennice (okna obustronnie białe, drzwi brązowe)
- Schody zabiegowe
- Dwukrotne malowanie oraz impregnacja preparatem marki Drewnochron
- Krycie dachu membraną dachową oraz gontem bitumicznym marki Iko/Technonicol
- Rynny wraz z rurami spustowymi
- Podłogę pomalowaną na ten sam kolor co elewacja
- Izolację termiczną (ocieplenie) podłogi
- Izolację termiczną (ocieplenie) ścian
- Izolację termiczną (ocieplenie) dachu
- Instalację elektryczną wraz z gniazdkami
- Instalację hydrauliczną wraz z bojlerem
- Transport i montaż na terenie całego kraju
- Prewencyjny system zabezpieczenia – atrapę kamery CCTV oraz tabliczkę ostrzegawczą „obiekt monitorowany”
Specyfikacja techniczna
| Ilość łazienek | 1 |
| Ścianka kolankowa | 50cm |
| Ilość sypialni | 2 |
| Powierzchnia tarasu | 10m2 |
| Powierzchnia domku | 35 m² |
| poddasze | Tak |
Dodatkowe informacje
| Standard wykonania | Deweloperski, całoroczny |
| Technologia wykonania | Szkieletowa kanadyjska |
| Gatunek drewna | Sosna i świerk |
| Standard drewna | Konstrukcyjne klasy C24 suszone komorowo, kluczowe elementy (słupy tarasowe, wieniec) wykonane z drewna KVH zapobiegającego procesowi pękania i odkształcania |
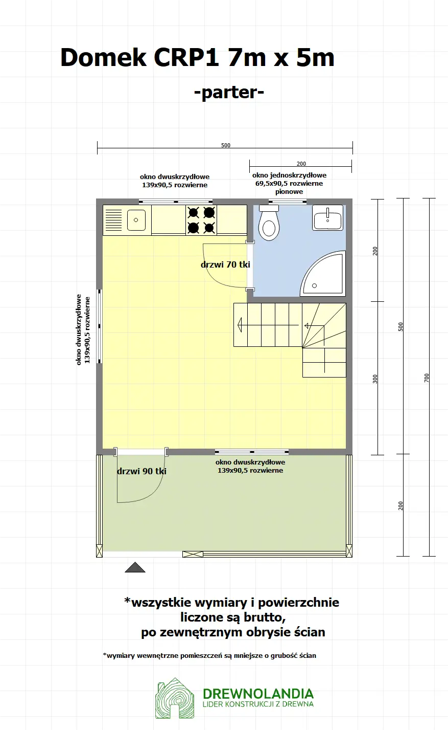
| Wymiar domku | 7m x 5m (35 m2, mierzone po obrysie jego podstawy) |
| Powierzchnia zabudowy | 35 m2 |
| Wysokość całkowita | ok. 600 cm |
| Wysokość ścian na parterze | 250 cm |
| Wysokość na poddaszu | 230 cm w kalenicy |
| Ścianka kolankowa na poddaszu | 50 cm |
| Parter | Otwarta przestrzeń 5m x 5m m z wydzielonym mniejszym pomieszczeniem 2m x 2m |
| Rodzaj poddasza | Pełne poddasze podzielone na dwa pomieszczenia – 4m x 5m i 3m x 5m |
| Taras | 2m x 5m |
| Stolarka | 3 x okno PCV dwuskrzydłowe i 1 x okno PCV jednoskrzydłowe na parterze, 2 x okno PCV jednoskrzydłowe na poddaszu, 3 x drzwi drewniane wewnętrzne, 1 x ocieplane drzwi stalowe zewnętrzne |
| Szkielet ścian | Kantówka 10 cm x 4 cm |
| Izolacja termiczna (ocieplenie) | Podłoga: wełna mineralna 10cm, ściany: wełna mineralna 20cm, dach: wełna mineralna 25cm |
| Powierzchnie izolowane (ocieplane) | Podłoga, ściany, dach |
| Rodzaj deskowania | Pióro-wpust |
| Grubość desek na dachu/elewacji/podłodze | 20mm |
| Wykończenie wewnętrzne ścian | Boazeria drewniana |
| Malowanie i impregnacja | 2 warstwy – bezbarwny podkład + preparat marki Drewnochron w wybranym kolorze – wzornik „kolory dla drewna STANDARD” |
| Pokrycie dachu | deskowanie, membrana dachowa oraz gont bitumiczny w wybranym kolorze – wzornik „pokrycia dachu STANDARD”) |
| Grubość ściany | 23,3cm |
| Instalacje | Elektryczna (25 punktów elektrycznych), hydrauliczna |
Dodatkowe opcje i możliwości
Wzorniki kolorów i materiałów

Wiśnia japońska
Drewnochron Impregnat Extra

Tik
Drewnochron Impregnat Extra

Palisander średni
Drewnochron Impregnat Extra

Orzech ciemny
Drewnochron Impregnat Extra

Dąb
Drewnochron Impregnat Extra

Cedr
Drewnochron Impregnat Extra
Opcje produktu
Wykonanie płyty fundamentowej
Ogrzewanie podłogowe foliami grzewczymi
Pokrycie dachu blachodachówką falistą + obróbki blacharskie w cenie
Przedłużenie gwarancji do 36 miesięcy
o szczegóły pytaj handlowców
Przedłużenie gwarancji do 48 miesięcy
o szczegóły pytaj handlowców
Skontaktuj się z nami w sprawie opcji
Nasze produkty można dostosować do indywidualnych potrzeb. Skontaktuj się z naszymi doradcami, aby omówić dostępne opcje i uzyskać wycenę.
Realizacje tego produktu
Masz pytania? Skontaktuj się z nami!
Podobne produkty

Domek mieszkalny całoroczny CRA5 PLUS - WT 2021 - 35 m²

Domek mieszkalny całoroczny CRA2 PLUS - WT2021 - 30 m²

Domek mieszkalny całoroczny Łukasz CRP5 PLUS - WT 2021 – 35 m²

Domek mieszkalny całoroczny CRP3 PLUS - WT 2021 – 33 m²
Co mówią o nas klienci?
Blog

Działka leśna - czym jest i co można na niej postawić?

Czy na działce budowlanej można postawić domek letniskowy?

Dofinansowanie na domek letniskowy – jak je uzyskać w 2026 roku?
